Торговый центр, 3 310 м²

ул Огородная

110 000 000 руб.

?

$ 1 086

€ 979

33 233 руб./м²


3310 м²

1/3 этажей

Код объекта

122346

Предложение доступно для субагентов, авторизуйтесь

Торговый центр, 3 310 м²

Код объекта: 122346.
Тип объекта: Торговый центр.
Площадь: 3310 м².
Этаж / Этажность: 1 / 3.

Описание и характеристики

От собственника! Без комиссии!

Характеристики:
- 1 линия
- Отдельная входная группа
- Своя парковка
- Есть возможность разместить вывеску
- Погрузка/разгрузка: Главный вход, Запасной вход
- Доступ 24/7
- ХВС/Бойлер
- Свой санузел
- Автономное отопление
- Приточно-вытяжная вентиляция
- Есть кондиционер
- Максимальная мощность 270 кВт
- Хороший ремонт
- Отдельно стоящее здание
- Имеется запасной выход
- Без лифта
- Высота потолков 3 м
- С окнами
- Возможность перепланировки
- Видеонаблюдение
- Коммунальные услуги включены

Дополнительная информация:
Торговый центр 3310, 8 м2 торговые павильоны вдоль здания. "Мега" оживленный район с развитой инфраструктурой и пешеходным, автомобильным трафиком. Сердце 3 жил.участка. Кольцо трамвая 9, остановки общественного транспорта, много сетевых магазинов, "Кольцо на районе", стоянки.
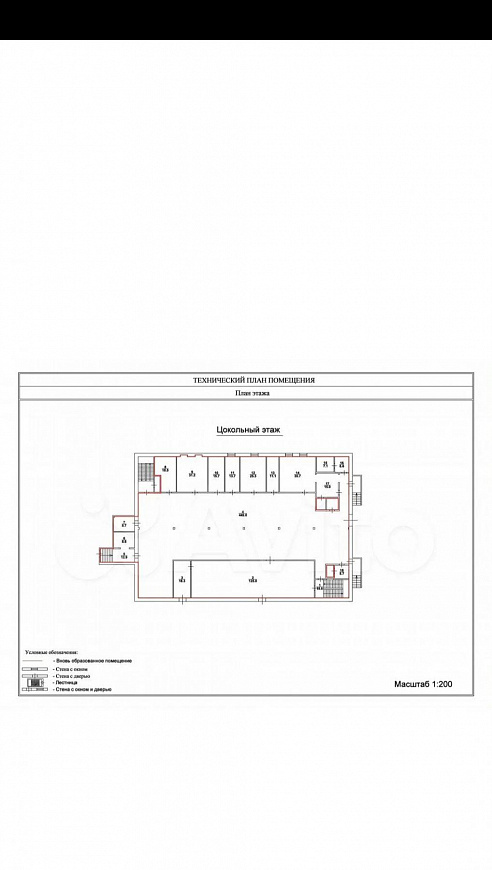
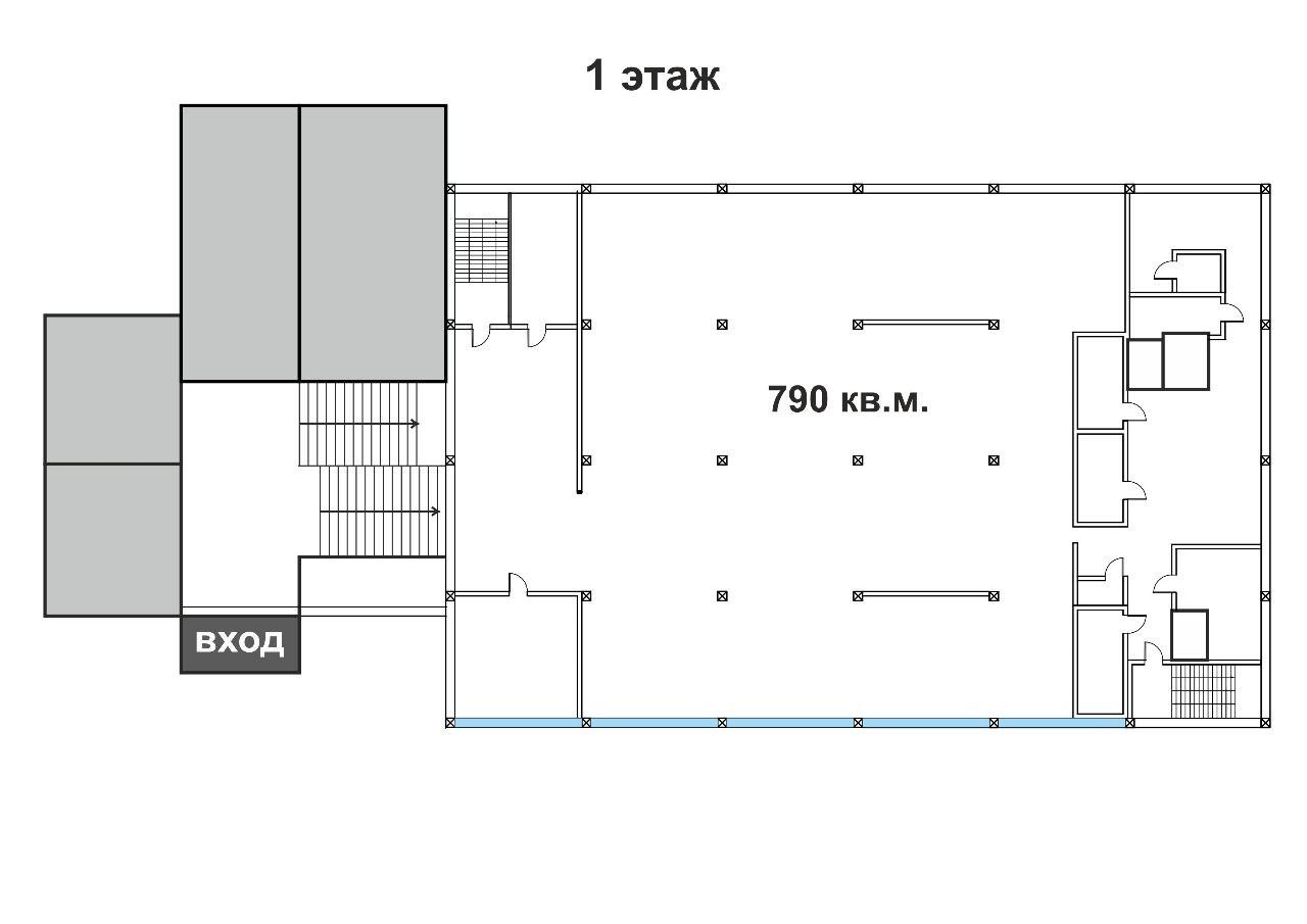
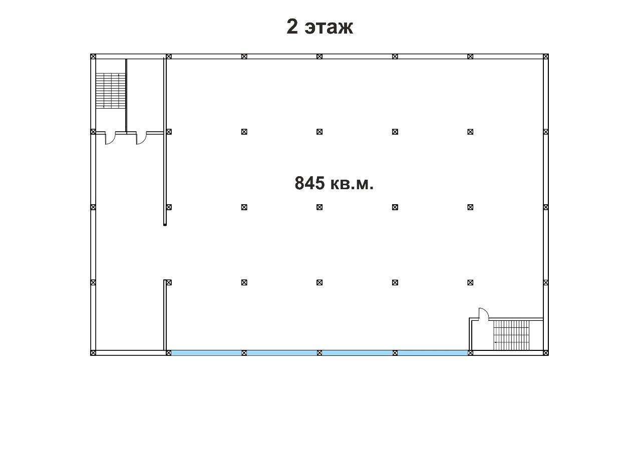
3 этажа торговых  площадей и офисных помещений. Все коммуникации. Земля в собственности, документы в порядке, можно выходить на сделку.
Полная реконструкция была произведена в 2020 году. Земельный участок находится в собственности. Рядом с ТЦ имеется парковка. В окружении объекта жилые дома высокой этажности, большой частный сектор.
Окупаемость 10 лет.

По всем вопросам можете обращаться к представителю собственника: Роман Х.

Перейти в карточку объекта в CRM: 122346.

Агентство Регионального Развития

+7 900 312-59-99

или оставьте ваш номер, и я перезвоню в течение 30 минут

Отправляя заявку вы соглашаетесь на обработку персональных данных

110 000 000 руб.

?

$ 1 429 084

€ 1 222 059

33 233 руб./м²


3310 м²

1/3 этажей

Код объекта

122346

Предложение доступно для субагентов, авторизуйтесь

Агентство Регионального Развития

+7 900 312-59-99

или оставьте ваш номер, и я перезвоню в течение 30 минут

Отправляя заявку вы соглашаетесь на обработку персональных данных

Похожие объявления

Посмотреть все похожие объявления
1/18
Код объекта: 42454.
Тип объекта: Торговое помещение.
Площадь: 109 м².
Этаж / Этажность: 1 / 1.
1/12
Код объекта: 210015.
Тип объекта: Отдельно стоящее здание.
Площадь: 2500 м².
Этаж / Этажность: 1 / 1.
1/9
Код объекта: 233636.
Тип объекта: Офисное помещение.
Площадь: 72 м².
Этаж / Этажность: 1 / 5.
1/18
Код объекта: 209216.
Тип объекта: Помещение свободного назначения.
Площадь: 150 м².
Этаж / Этажность: 1 / 1.
1/3
Код объекта: 284521.
Тип объекта: Производственное помещение.
Площадь: 46.8 м².
Этаж / Этажность: 1 / 1.

Не хочу искать, перезвоните мне!

Оставьте номер телефона, наш специалист свяжется с вами и поможет с подбором недвижимости!