Свободного назначения 845 м²

ул Огородная, д. 158А

147 875 руб.

?

$ 1 086

€ 979

175 руб./м²


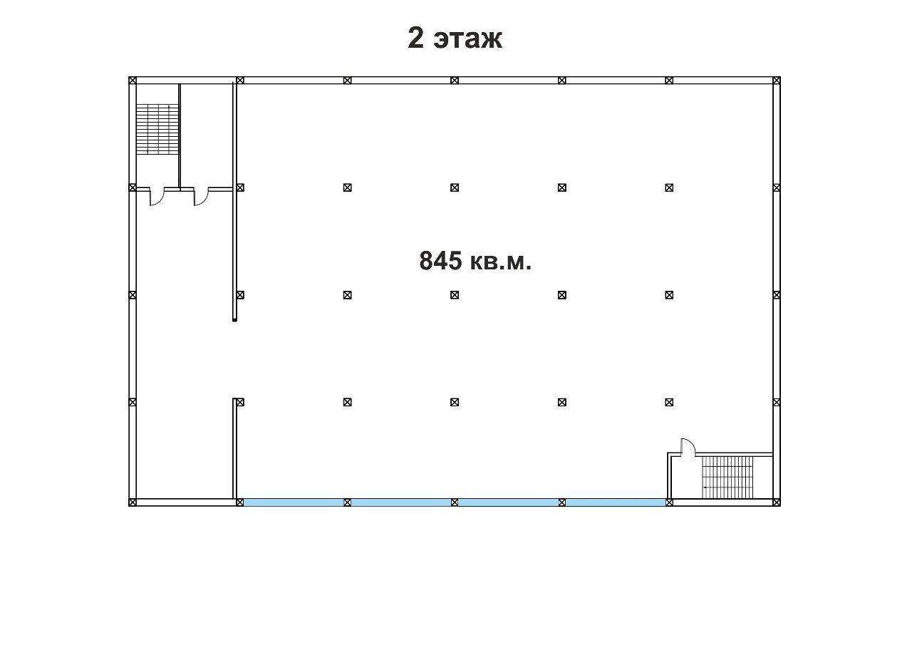
845 м²

2/3 этажей

Код объекта

120026

Предложение доступно для субагентов, авторизуйтесь

Свободного назначения 845 м²

Код объекта: 120026.
Тип объекта: Помещение свободного назначения.
Площадь: 845 м².
Этаж / Этажность: 2 / 3.

Описание и характеристики

От собственника! Без комиссии!

Характеристики:
- 1 линия
- Общая входная группа
- Общая парковка
- Есть возможность разместить вывеску
- Погрузка/разгрузка: Запасной вход
- Доступ 24/7
- ХВС/ГВС
- Свой санузел
- Центральное отопление
- Приточно-вытяжная вентиляция
- Есть кондиционер
- Максимальная мощность 100 кВт
- Требует косметического ремонта
- Торговый/офисный центр
- Имеется запасной выход
- Без лифта
- Высота потолков 3 м
- С окнами
- Возможность перепланировки
- Видеонаблюдение
- Коммунальные услуги оплачиваются отдельно

Дополнительная информация:
От 70 до 845 м2
Свободного назначения. Большой торговый зал, с возможностью разделения на зоны. Высокий пешеходный и автомобильный  трафик, автобусные и трамвайные остановки. Площади можно использовать как под торговые так и  под производственные. Увеличение мощности по желанию арендатора. Отличное место под торговлю, производство, проведения мероприятий. Школы танца, секции, под клуб виртуальной реальности. Масса возможностей. Уникальное предложения для любого вида деятельности.

По всем вопросам можете обращаться к представителю собственника: Роман Х.

Перейти в карточку объекта в CRM: 120026.

Агентство Регионального Развития

+7 900 312-59-99

или оставьте ваш номер, и я перезвоню в течение 30 минут

Отправляя заявку вы соглашаетесь на обработку персональных данных

147 875 руб.

?

$ 1 890

€ 1 606

175 руб./м²


845 м²

2/3 этажей

Код объекта

120026

Предложение доступно для субагентов, авторизуйтесь

Агентство Регионального Развития

+7 900 312-59-99

или оставьте ваш номер, и я перезвоню в течение 30 минут

Отправляя заявку вы соглашаетесь на обработку персональных данных

Похожие объявления

Посмотреть все похожие объявления
1/17
Код объекта: 359913.
Тип объекта: Помещение свободного назначения.
Площадь: 295 м².
Этаж / Этажность: 1 / 5.
1/7
Код объекта: 260352.
Тип объекта: Помещение свободного назначения.
Площадь: 163 м².
Этаж / Этажность: 1 / 21.
1/10
Код объекта: 359731.
Тип объекта: Помещение свободного назначения.
Площадь: 264 м².
Этаж / Этажность: 1 / 1.
1/11
Код объекта: 297007.
Тип объекта: Помещение свободного назначения.
Площадь: 131 м².
Этаж / Этажность: 1 / 1.
1/18
Код объекта: 404014.
Тип объекта: Помещение свободного назначения.
Площадь: 228 м².
Этаж / Этажность: 1 / 10.
1/24
Код объекта: 342325.
Тип объекта: Помещение свободного назначения.
Площадь: 670.7 м².
Этаж / Этажность: 2 / 4.
1/6
Код объекта: 369364.
Тип объекта: Помещение свободного назначения.
Площадь: 1000 м².
Этаж / Этажность: 1 / 2.
1/19
Код объекта: 299820.
Тип объекта: Помещение свободного назначения.
Площадь: 720 м².
Этаж / Этажность: 1 / 2.
1/18
Код объекта: 313902.
Тип объекта: Помещение свободного назначения.
Площадь: 750 м².
Этаж / Этажность: 1 / 1.
1/27
Код объекта: 261128.
Тип объекта: Помещение свободного назначения.
Площадь: 725 м².
Этаж / Этажность: 1 / 2.
1/18
Код объекта: 42454.
Тип объекта: Торговое помещение.
Площадь: 109 м².
Этаж / Этажность: 1 / 1.
1/4
Код объекта: 228281.
Тип объекта: Складское помещение.
Площадь: 137 м².
Этаж / Этажность: 1 / 1.
1/12
Код объекта: 210015.
Тип объекта: Отдельно стоящее здание.
Площадь: 2500 м².
Этаж / Этажность: 1 / 1.
1/9
Код объекта: 233636.
Тип объекта: Офисное помещение.
Площадь: 72 м².
Этаж / Этажность: 1 / 5.
1/14
Код объекта: 228503.
Тип объекта: Офисное помещение.
Площадь: 17 м².
Этаж / Этажность: 5 / 9.

Не хочу искать, перезвоните мне!

Оставьте номер телефона, наш специалист свяжется с вами и поможет с подбором недвижимости!