Премиальное помещение, 280 м2

ул Советская, д. 9/30

405 000 руб.

?

$ 1 086

€ 979

1 446 руб./м²


280 м²

1/18 этажей

Код объекта

125536

Предложение доступно для субагентов, авторизуйтесь

Премиальное помещение, 280 м2

Код объекта: 125536.
Тип объекта: Помещение свободного назначения.
Площадь: 280 м².
Этаж / Этажность: 1 / 18.

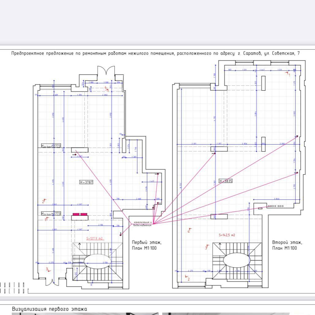
Описание и характеристики

От собственника! Без комиссии!

Характеристики:
- 1 линия
- Отдельная входная группа
- Общая парковка
- Есть возможность разместить вывеску
- Погрузка/разгрузка: Запасной вход, Главный вход
- Доступ 24/7
- Максимальная мощность 30 кВт
- Черновой ремонт
- Стрит ритейл
- Имеется запасной выход
- Без лифта
- С окнами
- Возможность перепланировки
- Коммунальные услуги оплачиваются отдельно

Дополнительная информация:
Престижный район!
Первые фото - проект.
Огромный трафик.
2 этажа с витражными окнами.

Новый 18 этажный дом, в котором располагаются стоматология, салон красоты, МФЦ и многое другое.

В окружении ресторанов и премиальных бутиков, много точек притяжения.

Новые коммуникации, возможность спроектировать под любой вид деятельности, а также возможность размещения вывески.

Звоните!

По всем вопросам можете обращаться к представителю собственника: Евгения В.

Перейти в карточку объекта в CRM: 125536.

Агентство Регионального Развития

+7 900 312-59-99

или оставьте ваш номер, и я перезвоню в течение 30 минут

Отправляя заявку вы соглашаетесь на обработку персональных данных

405 000 руб.

?

$ 5 177

€ 4 398

1 446 руб./м²


280 м²

1/18 этажей

Код объекта

125536

Предложение доступно для субагентов, авторизуйтесь

Агентство Регионального Развития

+7 900 312-59-99

или оставьте ваш номер, и я перезвоню в течение 30 минут

Отправляя заявку вы соглашаетесь на обработку персональных данных

Похожие объявления

Посмотреть все похожие объявления
1/11
Код объекта: 228046.
Тип объекта: Помещение свободного назначения.
Площадь: 250 м².
Этаж / Этажность: 1 / 9.
1/19
Код объекта: 299820.
Тип объекта: Помещение свободного назначения.
Площадь: 720 м².
Этаж / Этажность: 1 / 2.
1/18
Код объекта: 223855.
Тип объекта: Помещение свободного назначения.
Площадь: 1150 м².
Этаж / Этажность: 1 / 1.
1/27
Код объекта: 261128.
Тип объекта: Помещение свободного назначения.
Площадь: 725 м².
Этаж / Этажность: 1 / 2.
1/10
Код объекта: 205425.
Тип объекта: Помещение свободного назначения.
Площадь: 558 м².
Этаж / Этажность: 1 / 9.
1/4
Код объекта: 238221.
Тип объекта: Помещение свободного назначения.
Площадь: 300 м².
Этаж / Этажность: 1 / 1.
1/11
Код объекта: 228046.
Тип объекта: Помещение свободного назначения.
Площадь: 250 м².
Этаж / Этажность: 1 / 9.
1/19
Код объекта: 343486.
Тип объекта: Помещение свободного назначения.
Площадь: 200 м².
Этаж / Этажность: 2 / 2.
1/17
Код объекта: 359913.
Тип объекта: Помещение свободного назначения.
Площадь: 295 м².
Этаж / Этажность: 1 / 5.
1/2
Код объекта: 344038.
Тип объекта: Помещение свободного назначения.
Площадь: 197 м².
Этаж / Этажность: 1 / 10.
1/18
Код объекта: 42454.
Тип объекта: Торговое помещение.
Площадь: 109 м².
Этаж / Этажность: 1 / 1.
1/4
Код объекта: 228281.
Тип объекта: Складское помещение.
Площадь: 137 м².
Этаж / Этажность: 1 / 1.
1/12
Код объекта: 210015.
Тип объекта: Отдельно стоящее здание.
Площадь: 2500 м².
Этаж / Этажность: 1 / 1.
1/9
Код объекта: 233636.
Тип объекта: Офисное помещение.
Площадь: 72 м².
Этаж / Этажность: 1 / 5.
1/14
Код объекта: 228503.
Тип объекта: Офисное помещение.
Площадь: 17 м².
Этаж / Этажность: 5 / 9.

Не хочу искать, перезвоните мне!

Оставьте номер телефона, наш специалист свяжется с вами и поможет с подбором недвижимости!