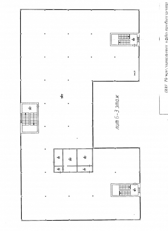
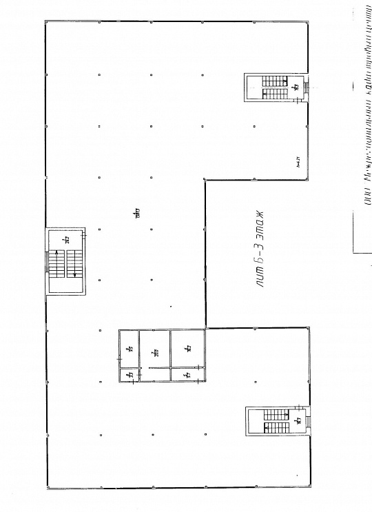
Производственное помещение 1500 м2

тер Промышленная , д. 5а

600 000 руб.

?

$ 1 086

€ 979

400 руб./м²


1500 м²

3/3 этажей

Код объекта

118048

Предложение доступно для субагентов, авторизуйтесь

Производственное помещение 1500 м2

Код объекта: 118048.
Тип объекта: Бизнес-центр/офисный центр.
Площадь: 1500 м².
Этаж / Этажность: 3 / 3.
Назначения: Офис, Производство.

Описание и характеристики

От собственника! Без комиссии!

Характеристики:
- 1 линия
- Общая входная группа
- Общая парковка
- Доступ по общему графику
- Свой санузел
- Мощность электричества 100 кВт
- Высота потолков 4,2 м
- Автономное отопление
- Черновая отделка
- Открытая планировка
- Офисный центр
- Без лифта
- Видеонаблюдение
- Без мебели
- С окнами
- Инфраструктура: Кафе/столовые
- Коммунальные услуги оплачиваются отдельно
- Предоставление юридического адреса

Дополнительная информация:
Бизнеc-цeнтр, pасположенный нa теpритоpии Логиcтическoгo кoмплeкca A-классa, прeдлагaет в apeнду 1500 кв.м. на 3 этаже 3-х этажного здания. Cлужeбная и гоcтевaя паркoвка на 150 м/м лeгкoвогo трaнcпоpта.
Oфиc в формате "оpen sраce"
KПП, oхраняемая территория
Контроль доступа
Высокоскоростной доступ в интернет
IР телефония
Арендная плата 400р/м2 в месяц + НДС
Коммунальные платежи оплачиваются отдельно.                                                    
Возможно размещение швейного производства, столярного пр-ва и др.
Под крупного арендатора, по-необходимости, можно установить грузовой лифт.

Логистический комплекс расположен в черте города, СКАД 500 метров. Отличный круглосуточный доступ без пробок из Саратова и Энгельса.

По всем вопросам можете обращаться к представителю собственника: Екатерина Д.

Перейти в карточку объекта в CRM: 118048.

Агентство Регионального Развития

+7 900 312-59-99

или оставьте ваш номер, и я перезвоню в течение 30 минут

Отправляя заявку вы соглашаетесь на обработку персональных данных

600 000 руб.

?

$ 7 923

€ 6 632

400 руб./м²


1500 м²

3/3 этажей

Код объекта

118048

Предложение доступно для субагентов, авторизуйтесь

Агентство Регионального Развития

+7 900 312-59-99

или оставьте ваш номер, и я перезвоню в течение 30 минут

Отправляя заявку вы соглашаетесь на обработку персональных данных

Похожие объявления

Посмотреть все похожие объявления
1/20
Код объекта: 306810.
Тип объекта: Бизнес-центр/офисный центр.
Площадь: 1253.1 м².
Этаж / Этажность: 4 / 4.
1/20
Код объекта: 306811.
Тип объекта: Бизнес-центр/офисный центр.
Площадь: 1250 м².
Этаж / Этажность: 2 / 4.
1/14
Код объекта: 258605.
Тип объекта: Бизнес-центр/офисный центр.
Площадь: 1003 м².
Этаж / Этажность: 2 / 10.
1/15
Код объекта: 263053.
Тип объекта: Бизнес-центр/офисный центр.
Площадь: 2500 м².
Этаж / Этажность: 2 / 4.
1/32
Код объекта: 292148.
Тип объекта: Бизнес-центр/офисный центр.
Площадь: 1350 м².
Этаж / Этажность: 1 / 2.
1/20
Код объекта: 306810.
Тип объекта: Бизнес-центр/офисный центр.
Площадь: 1253.1 м².
Этаж / Этажность: 4 / 4.
1/20
Код объекта: 306811.
Тип объекта: Бизнес-центр/офисный центр.
Площадь: 1250 м².
Этаж / Этажность: 2 / 4.
1/9
Код объекта: 297025.
Тип объекта: Бизнес-центр/офисный центр.
Площадь: 1500 м².
Этаж / Этажность: 2 / 2.
1/18
Код объекта: 42454.
Тип объекта: Торговое помещение.
Площадь: 109 м².
Этаж / Этажность: 1 / 1.
1/4
Код объекта: 228281.
Тип объекта: Складское помещение.
Площадь: 137 м².
Этаж / Этажность: 1 / 1.
1/12
Код объекта: 210015.
Тип объекта: Отдельно стоящее здание.
Площадь: 2500 м².
Этаж / Этажность: 1 / 1.
1/9
Код объекта: 233636.
Тип объекта: Офисное помещение.
Площадь: 72 м².
Этаж / Этажность: 1 / 5.
1/14
Код объекта: 228503.
Тип объекта: Офисное помещение.
Площадь: 17 м².
Этаж / Этажность: 5 / 9.

Не хочу искать, перезвоните мне!

Оставьте номер телефона, наш специалист свяжется с вами и поможет с подбором недвижимости!