Отдельно стоящее здание, 2300 м2

ул им Осипова В.И., д. 1

750 000 руб.

?

$ 1 086

€ 979

300 руб./м²


2500 м²

2/4 этажей

Код объекта

115478

Предложение доступно для субагентов, авторизуйтесь

Отдельно стоящее здание, 2300 м2

Код объекта: 115478.
Тип объекта: Бизнес-центр/офисный центр.
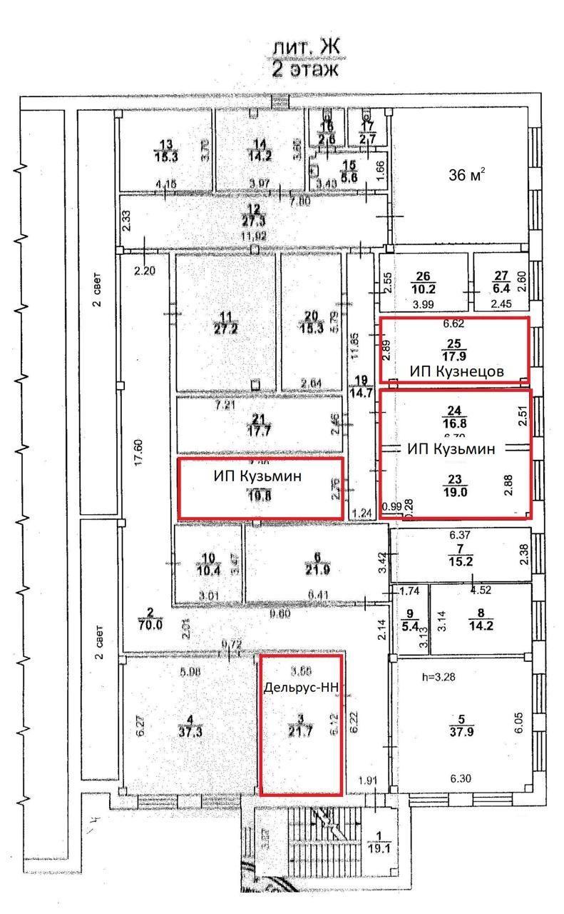
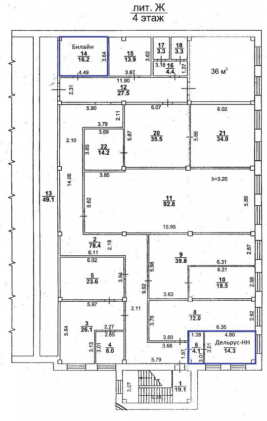
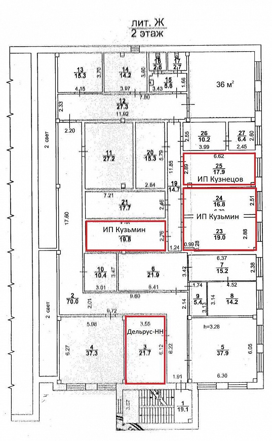
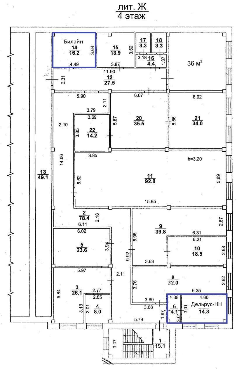
Площадь: 2500 м².
Этаж / Этажность: 2 / 4.
Назначения: Офис, Производство.

Описание и характеристики

От собственника! Без комиссии!

Предлагается в аренду Производственно - офисный комплекс 2300 кв.м. в центре Кировского района г. Саратова.
На Первом этаже порядка 600 кв.м. отапливаемых Производственных площадей открытого пространства с шагом колонн 6 м..
Высокие въездные ворота.
Электрической мощности 100 кВт..
Есть перегородки разделяющие помещение, которые при необходимости легко демонтируются.
Высота потолков первого этажа 5 м..
Второй, Третий и Четвёртый этажи - офисное пространство по 550 кв.м. каждый с перегородками, которые при необходимости легко демонтируются.
Сае узлы на каждом этаже.
ГАЗ. Установлены 2 газовых котла на отопление и подогрев воды.
Вода и канализация - центральные.
Есть пространство между зданием и верхним ярусом бетонной стены парковки порядка 150 кв.м., которое можно накрыть навесом и использовать как склад или доп метраж для производства.
Огромная парковка на 30 - 35 машиномест в собственности.
Гараж на 4 авто или для хранения.
Видео наблюдение.
Система доступа в здание СКУД.
Состояние помещений на фото.
Возможны варианты поэтапного ремонта собственником всего здания с корректировкой стоимости аренды.
Возможен вариант ремонта Арендатором всего пространства под себя с поэтапным частичным зачётом в стоимость аренды.
Все вопросы обсуждаются после просмотра объекта.
В связи с застройкой территории старого аэропорта, в ближайшей перспективе это очень востребованный объект с отличной транспортной инфраструктурой.



По всем вопросам можете обращаться к представителю собственника: Дмитрий Т.

Перейти в карточку объекта в CRM: 115478.

Агентство Регионального Развития

+7 900 312-59-99

или оставьте ваш номер, и я перезвоню в течение 30 минут

Отправляя заявку вы соглашаетесь на обработку персональных данных

750 000 руб.

?

$ 9 264

€ 7 985

300 руб./м²


2500 м²

2/4 этажей

Код объекта

115478

Предложение доступно для субагентов, авторизуйтесь

Агентство Регионального Развития

+7 900 312-59-99

или оставьте ваш номер, и я перезвоню в течение 30 минут

Отправляя заявку вы соглашаетесь на обработку персональных данных

Похожие объявления

Посмотреть все похожие объявления
1/32
Код объекта: 292148.
Тип объекта: Бизнес-центр/офисный центр.
Площадь: 1350 м².
Этаж / Этажность: 1 / 2.
1/20
Код объекта: 306810.
Тип объекта: Бизнес-центр/офисный центр.
Площадь: 1253.1 м².
Этаж / Этажность: 4 / 4.
1/20
Код объекта: 306811.
Тип объекта: Бизнес-центр/офисный центр.
Площадь: 1250 м².
Этаж / Этажность: 2 / 4.
1/14
Код объекта: 275609.
Тип объекта: Бизнес-центр/офисный центр.
Площадь: 1500 м².
Этаж / Этажность: 3 / 3.
1/9
Код объекта: 297025.
Тип объекта: Бизнес-центр/офисный центр.
Площадь: 1500 м².
Этаж / Этажность: 2 / 2.
1/11
Код объекта: 315667.
Тип объекта: Бизнес-центр/офисный центр.
Площадь: 2250 м².
Этаж / Этажность: 2 / 4.
1/18
Код объекта: 42454.
Тип объекта: Торговое помещение.
Площадь: 109 м².
Этаж / Этажность: 1 / 1.
1/12
Код объекта: 210015.
Тип объекта: Отдельно стоящее здание.
Площадь: 2500 м².
Этаж / Этажность: 1 / 1.
1/9
Код объекта: 233636.
Тип объекта: Офисное помещение.
Площадь: 72 м².
Этаж / Этажность: 1 / 5.
1/18
Код объекта: 209216.
Тип объекта: Помещение свободного назначения.
Площадь: 150 м².
Этаж / Этажность: 1 / 1.
1/3
Код объекта: 284521.
Тип объекта: Производственное помещение.
Площадь: 46.8 м².
Этаж / Этажность: 1 / 1.

Не хочу искать, перезвоните мне!

Оставьте номер телефона, наш специалист свяжется с вами и поможет с подбором недвижимости!