Продам производственное помещение, 650 м²

Вольский тракт , д. 1

23 500 000 руб.

?

$ 1 086

€ 979

36 154 руб./м²


650 м²

1/1 этажей

Код объекта

100335

Предложение доступно для субагентов, авторизуйтесь

Продам Производственное помещение, 650 м²

Код объекта: 100335.
Тип объекта: Производственное помещение.
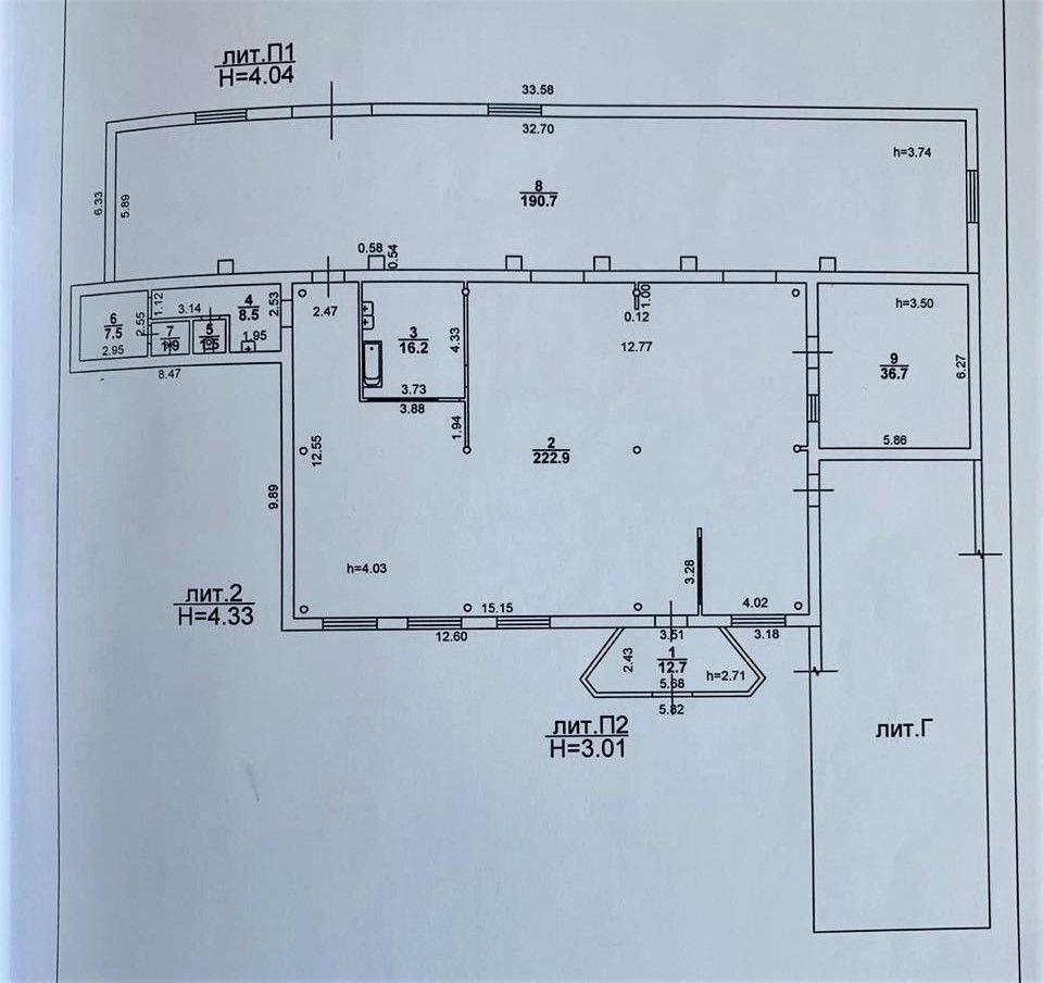
Площадь: 650 м².
Этаж / Этажность: 1 / 1.

Описание и характеристики

От собственника! Без комиссии!

Предлагается к продаже полностью оснащенное пищевое производство в одноэтажном отдельно стоящем здании по адресу: ул. Вольский тракт, строение 1.
Вольский тракт находится на выезде из Ленинского района в сторону Саратовской Кольцевой Автомобильной Дороги.
Рядом торговый комплекс Happy Moll, АЗС, остановки общественного транспорта.
В метраж 650 м2 входят все постройки на объекте.
- Производство соответствует всем требованиям системы ХАССП;
- Газовые и эл. плиты, шоковая заморозка;
- Холодильные и морозильные камеры;
- Пароконвектоматы, гриль, моечные;
- Собственная ГРПШ, газовая котельная;
- Большая эл. мощность;
- Возможность перепланировки здания;
- Доступ 24/7;
- Круглосуточное видео наблюдение;
- Свободный подъезд фур;
- Собственная огороженная территория, в собственности 12 соток;
- 1 линия.
Возможно использовать по другому назначению.

Екатерина Д.

Перейти в карточку объекта в CRM: 100335.

Агентство Регионального Развития

+7 900 312-59-99

или оставьте ваш номер, и я перезвоню в течение 30 минут

Отправляя заявку вы соглашаетесь на обработку персональных данных

23 500 000 руб.

?

$ 314 165

€ 265 109

36 154 руб./м²


650 м²

1/1 этажей

Код объекта

100335

Предложение доступно для субагентов, авторизуйтесь

Агентство Регионального Развития

+7 900 312-59-99

или оставьте ваш номер, и я перезвоню в течение 30 минут

Отправляя заявку вы соглашаетесь на обработку персональных данных

Похожие объявления

Посмотреть все похожие объявления
1/31
Код объекта: 428153.
Тип объекта: Производственное помещение.
Площадь: 400 м².
Этаж / Этажность: 2 / 5.
1/18
Код объекта: 256680.
Тип объекта: Производственное помещение.
Площадь: 1904 м².
Этаж / Этажность: 1 / 2.
1/33
Код объекта: 374493.
Тип объекта: Производственное помещение.
Площадь: 772 м².
Этаж / Этажность: -1 / 1.
1/18
Код объекта: 42454.
Тип объекта: Торговое помещение.
Площадь: 109 м².
Этаж / Этажность: 1 / 1.
1/12
Код объекта: 210015.
Тип объекта: Отдельно стоящее здание.
Площадь: 2500 м².
Этаж / Этажность: 1 / 1.
1/9
Код объекта: 233636.
Тип объекта: Офисное помещение.
Площадь: 72 м².
Этаж / Этажность: 1 / 5.
1/18
Код объекта: 209216.
Тип объекта: Помещение свободного назначения.
Площадь: 150 м².
Этаж / Этажность: 1 / 1.
1/6
Код объекта: 256242.
Тип объекта: Торговое помещение.
Площадь: 51 м².
Этаж / Этажность: -1 / 9.

Не хочу искать, перезвоните мне!

Оставьте номер телефона, наш специалист свяжется с вами и поможет с подбором недвижимости!