Сдам торговое помещение, 133,5 м²

ул им Мичурина И.В., д. 155

40 000 руб.

?

$ 1 086

€ 979

300 руб./м²


133.5 м²

-1/2 этажей

Код объекта

102697

Предложение доступно для субагентов, авторизуйтесь

Сдам Торговое помещение, 133,5 м²

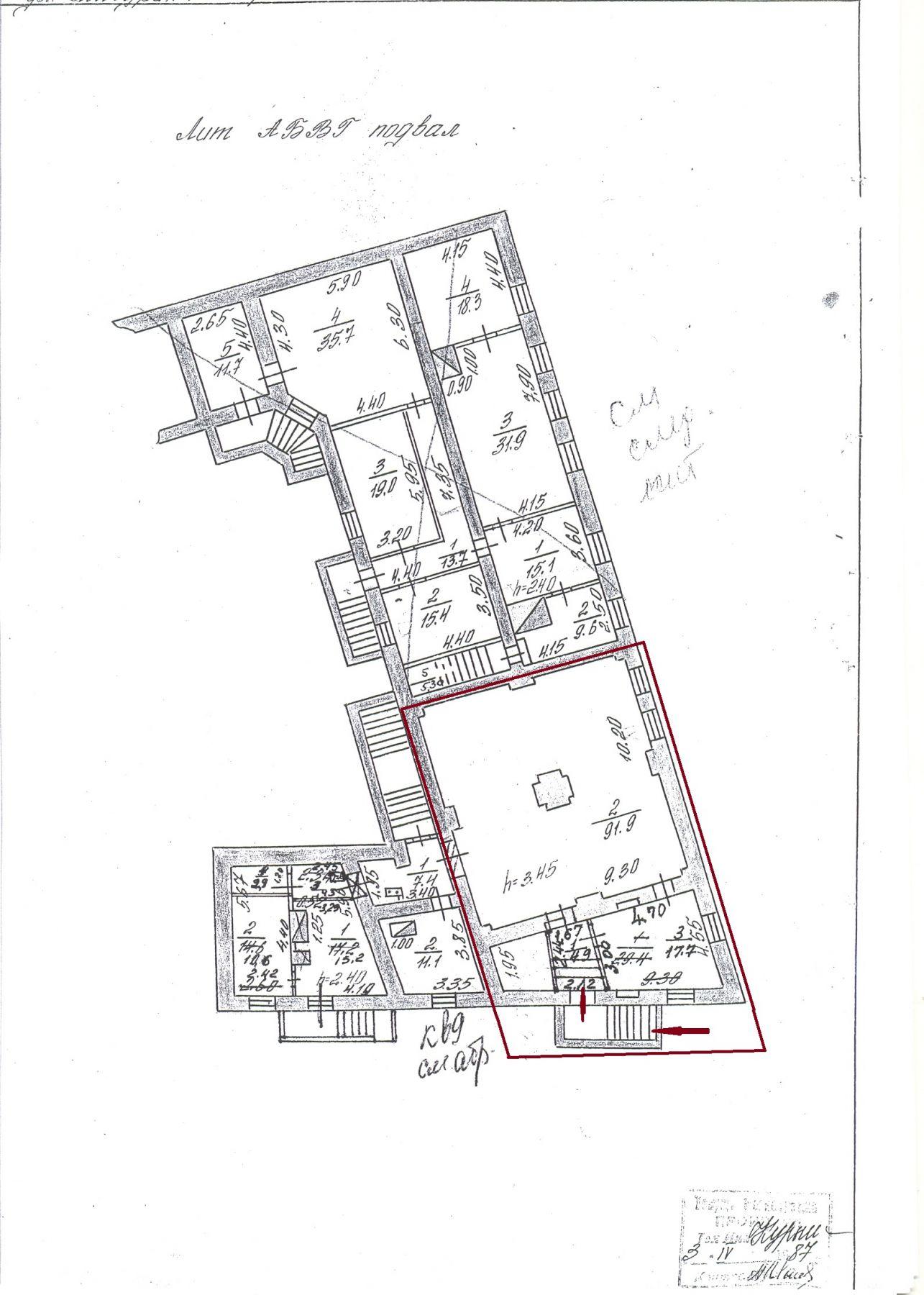
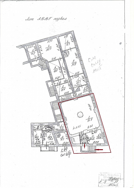
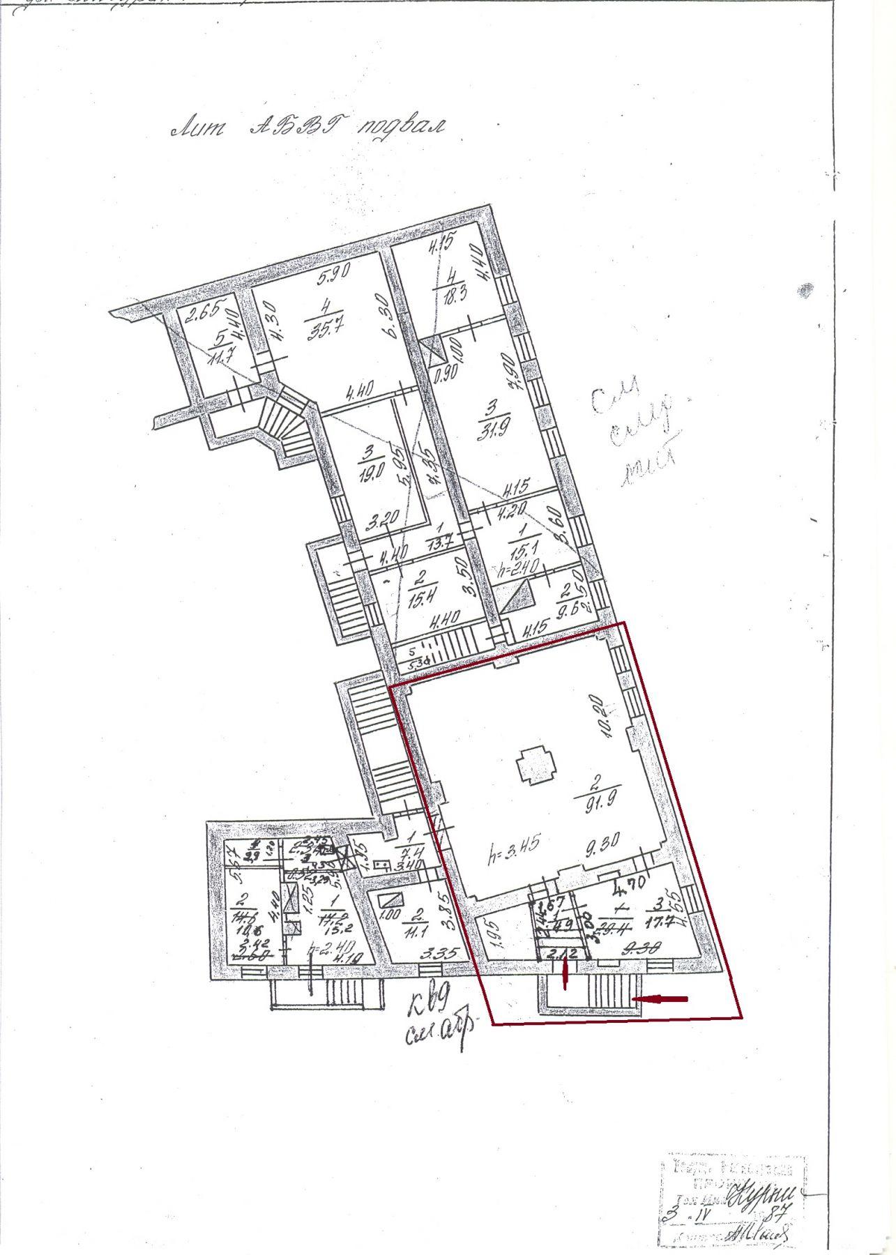
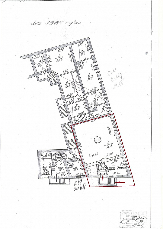
Код объекта: 102697.
Тип объекта: Торговое помещение.
Площадь: 133.5 м².
Этаж / Этажность: -1 / 2.

Описание и характеристики

Помещение свободного назначения 133,5 м2;
Высота потолков до 3 м;
Мощность электричества 24 кВт;
Автономное отопление;
Свет, вода, канализация - центральные;
Отделка в стиле Лофт;
Помещение состоит из 3-х залов, кухни и 2 сан.узла;
1-я линия, высокий пешеходный и автомобильный трафик;
Подойдёт под офис, кафе, ресторан, магазин.
Комиссия 40 тр.

Екатерина Д.

Перейти в карточку объекта в CRM: 102697.

Агентство Регионального Развития

+7 900 312-59-99

или оставьте ваш номер, и я перезвоню в течение 30 минут

Отправляя заявку вы соглашаетесь на обработку персональных данных

40 000 руб.

?

$ 511

€ 434

300 руб./м²


133.5 м²

-1/2 этажей

Код объекта

102697

Предложение доступно для субагентов, авторизуйтесь

Агентство Регионального Развития

+7 900 312-59-99

или оставьте ваш номер, и я перезвоню в течение 30 минут

Отправляя заявку вы соглашаетесь на обработку персональных данных

Похожие объявления

Посмотреть все похожие объявления
1/11
Код объекта: 262276.
Тип объекта: Торговое помещение.
Площадь: 55 м².
Этаж / Этажность: 1 / 1.
1/10
Код объекта: 337821.
Тип объекта: Торговое помещение.
Площадь: 50.6 м².
Этаж / Этажность: 1 / 1.
1/6
Код объекта: 289010.
Тип объекта: Торговое помещение.
Площадь: 40 м².
Этаж / Этажность: 1 / 2.
1/10
Код объекта: 262278.
Тип объекта: Торговое помещение.
Площадь: 47.7 м².
Этаж / Этажность: 1 / 1.
1/12
Код объекта: 335190.
Тип объекта: Торговое помещение.
Площадь: 42 м².
Этаж / Этажность: 1 / 1.
1/18
Код объекта: 42454.
Тип объекта: Торговое помещение.
Площадь: 109 м².
Этаж / Этажность: 1 / 1.
1/7
Код объекта: 262078.
Тип объекта: Торговое помещение.
Площадь: 100 м².
Этаж / Этажность: 1 / 5.
1/12
Код объекта: 262171.
Тип объекта: Торговое помещение.
Площадь: 119 м².
Этаж / Этажность: 1 / 1.
1/17
Код объекта: 400037.
Тип объекта: Торговое помещение.
Площадь: 105.9 м².
Этаж / Этажность: 1 / 10.
1/28
Код объекта: 291459.
Тип объекта: Торговое помещение.
Площадь: 100 м².
Этаж / Этажность: 1 / 2.
1/18
Код объекта: 42454.
Тип объекта: Торговое помещение.
Площадь: 109 м².
Этаж / Этажность: 1 / 1.
1/4
Код объекта: 228281.
Тип объекта: Складское помещение.
Площадь: 137 м².
Этаж / Этажность: 1 / 1.
1/12
Код объекта: 210015.
Тип объекта: Отдельно стоящее здание.
Площадь: 2500 м².
Этаж / Этажность: 1 / 1.
1/9
Код объекта: 233636.
Тип объекта: Офисное помещение.
Площадь: 72 м².
Этаж / Этажность: 1 / 5.
1/14
Код объекта: 228503.
Тип объекта: Офисное помещение.
Площадь: 17 м².
Этаж / Этажность: 5 / 9.

Не хочу искать, перезвоните мне!

Оставьте номер телефона, наш специалист свяжется с вами и поможет с подбором недвижимости!