Свободного назначения.

ул Усть-Курдюмская, д. 5

20 000 руб.

?

$ 1 086

€ 979

1 000 руб./м²


20 м²

1/4 этажей

Код объекта

128698

Предложение доступно для субагентов, авторизуйтесь

Свободного назначения.

Код объекта: 128698.
Тип объекта: Помещение свободного назначения.
Площадь: 20 м².
Этаж / Этажность: 1 / 4.

Описание и характеристики

От собственника! Без комиссии!

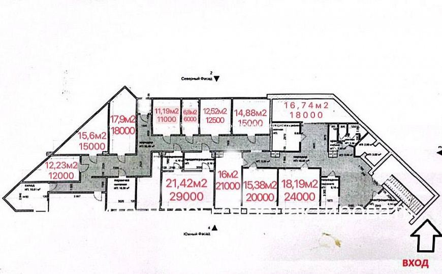
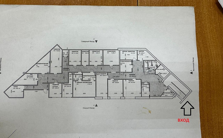
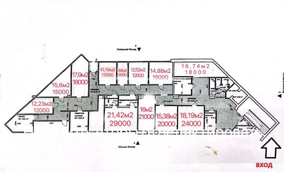
Кабинеты разных площадей  1 этаж в ТЦ "Квадро" от 10 до 22 м2 с окнами и без. Стоимость разная,  зависит от площади и расположения. Практически в каждой комнате есть мокрые точки. Комфортная зона ожидания для клиентов, несколько санузлов, 2 входа, наличие парковки. ТЦ расположен в центре Юбилейного, пешеходный и автомобильный трафик. остановка общественного транспорта.   Место пользуется популярность и приманивает к себе как магнит из за  расположения и наличия различных магазинов,  включая федеральных( Магнит, Фикс прайс, Улыбка радуги),  кафе, банки.
Характеристики:
- 1 линия
- Отдельная входная группа
- Общая парковка
- Есть возможность разместить вывеску
- Погрузка/разгрузка: Главный вход
- Доступ 24/7
- ХВС/ГВС
- Общий санузел
- Автономное отопление
- Максимальная мощность 50 кВт
- Хороший ремонт
- Торговый/офисный центр
- Имеется запасной выход
- Высота потолков 4 м
- С окнами
- Возможность перепланировки
- Коммунальные услуги включены

Дополнительная информация:
На втором фото указано какие помещения свободные.
Кабинеты разных площадей  1 этаж в ТЦ "Квадро" от 10 до 22 м2 с окнами и без. Стоимость разная,  зависит от площади и расположения. Практически в каждой комнате есть мокрые точки. Комфортная зона ожидания для клиентов, несколько санузлов, 2 входа, наличие парковки. ТЦ расположен в центре Юбилейного, пешеходный и автомобильный трафик. остановка общественного транспорта.   Место пользуется популярность и приманивает к себе как магнит из за  расположения и наличия различных магазинов,  включая федеральных( Магнит, Фикс прайс, Улыбка радуги),  кафе, банки.

По всем вопросам можете обращаться к представителю собственника: Роман Х.

Перейти в карточку объекта в CRM: 128698.

Агентство Регионального Развития

+7 900 312-59-99

или оставьте ваш номер, и я перезвоню в течение 30 минут

Отправляя заявку вы соглашаетесь на обработку персональных данных

20 000 руб.

?

$ 256

€ 217

1 000 руб./м²


20 м²

1/4 этажей

Код объекта

128698

Предложение доступно для субагентов, авторизуйтесь

Агентство Регионального Развития

+7 900 312-59-99

или оставьте ваш номер, и я перезвоню в течение 30 минут

Отправляя заявку вы соглашаетесь на обработку персональных данных

Похожие объявления

Посмотреть все похожие объявления
1/8
Код объекта: 206952.
Тип объекта: Помещение свободного назначения.
Площадь: 15 м².
Этаж / Этажность: 1 / 1.
1/12
Код объекта: 382245.
Тип объекта: Помещение свободного назначения.
Площадь: 29.3 м².
Этаж / Этажность: 1 / 1.
1/9
Код объекта: 237100.
Тип объекта: Помещение свободного назначения.
Площадь: 20.4 м².
Этаж / Этажность: 1 / 16.
1/19
Код объекта: 397049.
Тип объекта: Помещение свободного назначения.
Площадь: 32.7 м².
Этаж / Этажность: 1 / 5.
1/8
Код объекта: 206952.
Тип объекта: Помещение свободного назначения.
Площадь: 15 м².
Этаж / Этажность: 1 / 1.
1/11
Код объекта: 382566.
Тип объекта: Помещение свободного назначения.
Площадь: 26 м².
Этаж / Этажность: 1 / 3.
1/9
Код объекта: 237100.
Тип объекта: Помещение свободного назначения.
Площадь: 20.4 м².
Этаж / Этажность: 1 / 16.
1/18
Код объекта: 42454.
Тип объекта: Торговое помещение.
Площадь: 109 м².
Этаж / Этажность: 1 / 1.
1/4
Код объекта: 228281.
Тип объекта: Складское помещение.
Площадь: 137 м².
Этаж / Этажность: 1 / 1.
1/12
Код объекта: 210015.
Тип объекта: Отдельно стоящее здание.
Площадь: 2500 м².
Этаж / Этажность: 1 / 1.
1/9
Код объекта: 233636.
Тип объекта: Офисное помещение.
Площадь: 72 м².
Этаж / Этажность: 1 / 5.
1/14
Код объекта: 228503.
Тип объекта: Офисное помещение.
Площадь: 17 м².
Этаж / Этажность: 5 / 9.

Не хочу искать, перезвоните мне!

Оставьте номер телефона, наш специалист свяжется с вами и поможет с подбором недвижимости!