Сдам складское помещение, 856 м²

ул Универсальная, д. 1а

136 960 руб.

?

$ 1 086

€ 979

160 руб./м²


856 м²

1/1 этажей

Код объекта

102148

Предложение доступно для субагентов, авторизуйтесь

Сдам Складское помещение, 856 м²

Код объекта: 102148.
Тип объекта: Складское помещение.
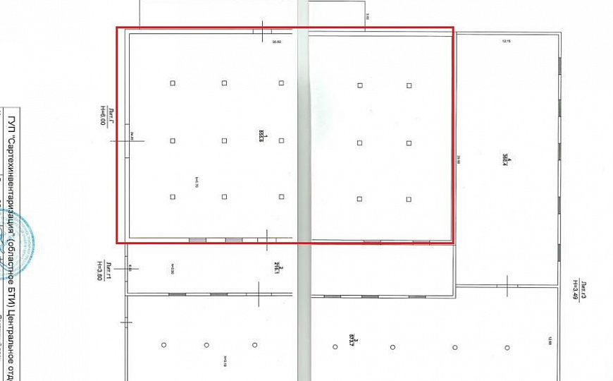
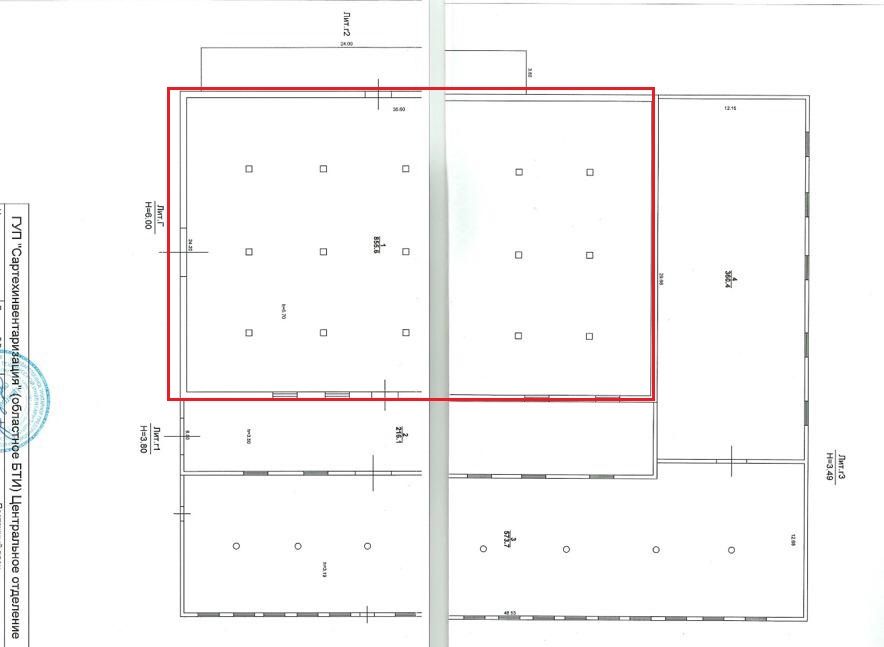
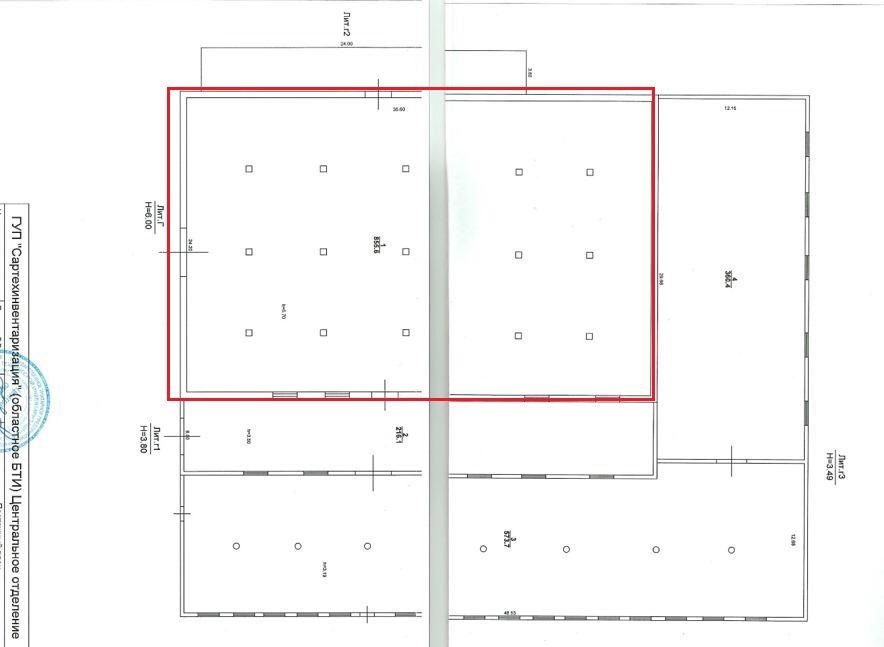
Площадь: 856 м².
Этаж / Этажность: 1 / 1.
Назначения: Склад.

Описание и характеристики

От собственника! Без комиссии!

Производственно-складское помещение 856 м2;
- Объект представляет собой помещение  36,1 м.* 23,6 м.
- Заасфальтированная и огороженная территория базы;
- Ворота: 3 шт. - 3,1 м.*3,2 м;
- Пол - асфальт, под погрузчик;
   Имеются небольшие перепады по высоте между сообщающимися складами ;
- Высота потолка 6 м.;
- Отопление - выводы под дизельные отопители (до +20 );
- Водоснабжение в административном здании городское;
- Канализация-выгребная яма;
- Электрическая мощность 35 кВт (проводятся работы по увеличению до 150 кВт);
- Сигнализация пожарная, охранная - смонтирована и готова к использованию;
- Видеонаблюдение + охрана ОВО;
- Интернет провайдер заведен;
- Возможно индивидуальное изменение характеристик под арендатора.

Екатерина Д.

Перейти в карточку объекта в CRM: 102148.

Агентство Регионального Развития

+7 900 312-59-99

или оставьте ваш номер, и я перезвоню в течение 30 минут

Отправляя заявку вы соглашаетесь на обработку персональных данных

136 960 руб.

?

$ 1 801

€ 1 528

160 руб./м²


856 м²

1/1 этажей

Код объекта

102148

Предложение доступно для субагентов, авторизуйтесь

Агентство Регионального Развития

+7 900 312-59-99

или оставьте ваш номер, и я перезвоню в течение 30 минут

Отправляя заявку вы соглашаетесь на обработку персональных данных

Похожие объявления

Посмотреть все похожие объявления
1/11
Код объекта: 417165.
Тип объекта: Складское помещение.
Площадь: 500 м².
Этаж / Этажность: 1 / 1.
1/9
Код объекта: 416700.
Тип объекта: Складское помещение.
Площадь: 360 м².
Этаж / Этажность: 1 / 1.
1/7
Код объекта: 256564.
Тип объекта: Складское помещение.
Площадь: 1250 м².
Этаж / Этажность: 1 / 1.
1/10
Код объекта: 402321.
Тип объекта: Складское помещение.
Площадь: 698.2 м².
Этаж / Этажность: 1 / 1.
1/17
Код объекта: 224787.
Тип объекта: Складское помещение.
Площадь: 934.1 м².
Этаж / Этажность: 1 / 1.
1/21
Код объекта: 416368.
Тип объекта: Складское помещение.
Площадь: 670 м².
Этаж / Этажность: 1 / 1.
1/13
Код объекта: 242615.
Тип объекта: Складское помещение.
Площадь: 1000 м².
Этаж / Этажность: 1 / 1.
1/10
Код объекта: 402321.
Тип объекта: Складское помещение.
Площадь: 698.2 м².
Этаж / Этажность: 1 / 1.
1/17
Код объекта: 224787.
Тип объекта: Складское помещение.
Площадь: 934.1 м².
Этаж / Этажность: 1 / 1.
1/12
Код объекта: 284979.
Тип объекта: Складское помещение.
Площадь: 1000 м².
Этаж / Этажность: 1 / 1.
1/18
Код объекта: 42454.
Тип объекта: Торговое помещение.
Площадь: 109 м².
Этаж / Этажность: 1 / 1.
1/12
Код объекта: 210015.
Тип объекта: Отдельно стоящее здание.
Площадь: 2500 м².
Этаж / Этажность: 1 / 1.
1/9
Код объекта: 233636.
Тип объекта: Офисное помещение.
Площадь: 72 м².
Этаж / Этажность: 1 / 5.
1/18
Код объекта: 209216.
Тип объекта: Помещение свободного назначения.
Площадь: 150 м².
Этаж / Этажность: 1 / 1.
1/6
Код объекта: 256242.
Тип объекта: Торговое помещение.
Площадь: 51 м².
Этаж / Этажность: -1 / 9.

Не хочу искать, перезвоните мне!

Оставьте номер телефона, наш специалист свяжется с вами и поможет с подбором недвижимости!