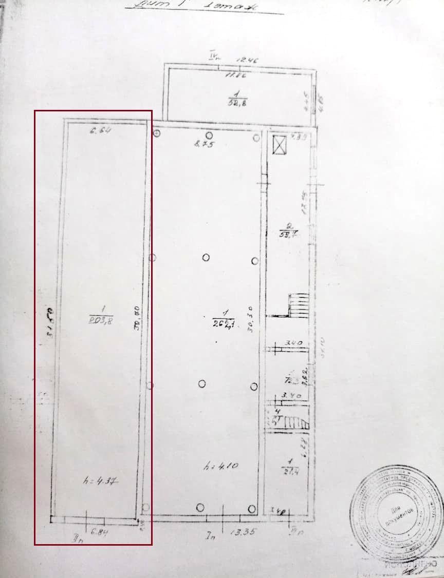
Складское помещение, 203,8 м²

Ново-Астраханское шоссе, д. 67

39 000 руб.

?

$ 1 086

€ 979

191 руб./м²


203.8 м²

1/1 этажей

Код объекта

127073

Предложение доступно для субагентов, авторизуйтесь

Складское помещение, 203,8 м²

Код объекта: 127073.
Тип объекта: Складское помещение.
Площадь: 203.8 м².
Этаж / Этажность: 1 / 1.
Назначения: Производство, Склад.

Описание и характеристики

Холодный склад с кран-балкой 203,8 м2

Холодный склад 203,8 м2;
Кран-балка на 2 т;
Мощность электричества 10 кВт;
Комната для персонала ок.10 м2;
Высота потолка 4,37 м;
Ворота откатные 3х4 м;
Видеонаблюдение;
Круглосуточная охрана;
Доступ 24/7;
Подъезд на легковом и грузовом транспорте.
Возможность снять офисное помещение на территории базы.
Предоставление арендных каникул на благоустройство склада.
Дополнительно оплата электроэнергии по счётчику.

Екатерина Д.

Перейти в карточку объекта в CRM: 127073.

Агентство Регионального Развития

+7 900 312-59-99

или оставьте ваш номер, и я перезвоню в течение 30 минут

Отправляя заявку вы соглашаетесь на обработку персональных данных

39 000 руб.

?

$ 508

€ 432

191 руб./м²


203.8 м²

1/1 этажей

Код объекта

127073

Предложение доступно для субагентов, авторизуйтесь

Агентство Регионального Развития

+7 900 312-59-99

или оставьте ваш номер, и я перезвоню в течение 30 минут

Отправляя заявку вы соглашаетесь на обработку персональных данных

Похожие объявления

Посмотреть все похожие объявления
1/10
Код объекта: 224726.
Тип объекта: Складское помещение.
Площадь: 144 м².
Этаж / Этажность: 1 / 1.
1/9
Код объекта: 235663.
Тип объекта: Складское помещение.
Площадь: 15000 м².
Этаж / Этажность: 1 / 1.
1/3
Код объекта: 300498.
Тип объекта: Складское помещение.
Площадь: 64 м².
Этаж / Этажность: 1 / 2.
1/10
Код объекта: 233719.
Тип объекта: Складское помещение.
Площадь: 230 м².
Этаж / Этажность: 1 / 1.
1/17
Код объекта: 267921.
Тип объекта: Складское помещение.
Площадь: 230 м².
Этаж / Этажность: -1 / 10.
1/10
Код объекта: 224726.
Тип объекта: Складское помещение.
Площадь: 144 м².
Этаж / Этажность: 1 / 1.
1/10
Код объекта: 405937.
Тип объекта: Складское помещение.
Площадь: 200 м².
Этаж / Этажность: -1 / 12.
1/21
Код объекта: 414619.
Тип объекта: Складское помещение.
Площадь: 196 м².
Этаж / Этажность: 1 / 1.
1/10
Код объекта: 233719.
Тип объекта: Складское помещение.
Площадь: 230 м².
Этаж / Этажность: 1 / 1.
1/17
Код объекта: 355293.
Тип объекта: Складское помещение.
Площадь: 220 м².
Этаж / Этажность: 1 / 1.
1/18
Код объекта: 42454.
Тип объекта: Торговое помещение.
Площадь: 109 м².
Этаж / Этажность: 1 / 1.
1/4
Код объекта: 228281.
Тип объекта: Складское помещение.
Площадь: 137 м².
Этаж / Этажность: 1 / 1.
1/12
Код объекта: 210015.
Тип объекта: Отдельно стоящее здание.
Площадь: 2500 м².
Этаж / Этажность: 1 / 1.
1/9
Код объекта: 233636.
Тип объекта: Офисное помещение.
Площадь: 72 м².
Этаж / Этажность: 1 / 5.
1/18
Код объекта: 209216.
Тип объекта: Помещение свободного назначения.
Площадь: 150 м².
Этаж / Этажность: 1 / 1.

Не хочу искать, перезвоните мне!

Оставьте номер телефона, наш специалист свяжется с вами и поможет с подбором недвижимости!