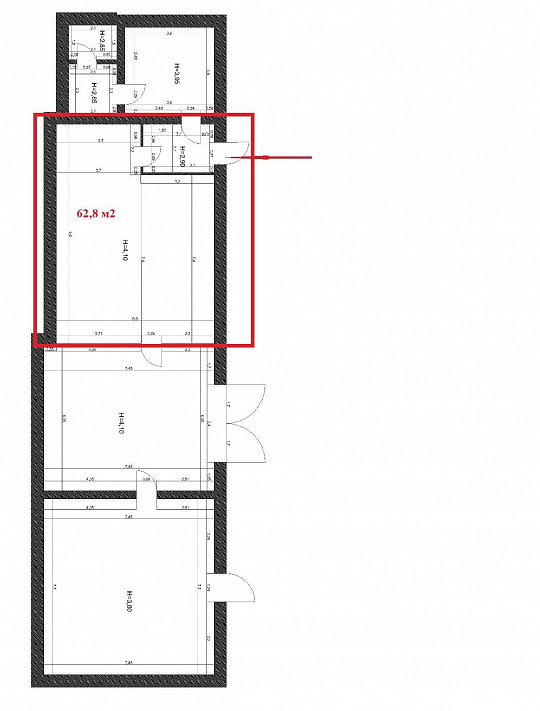
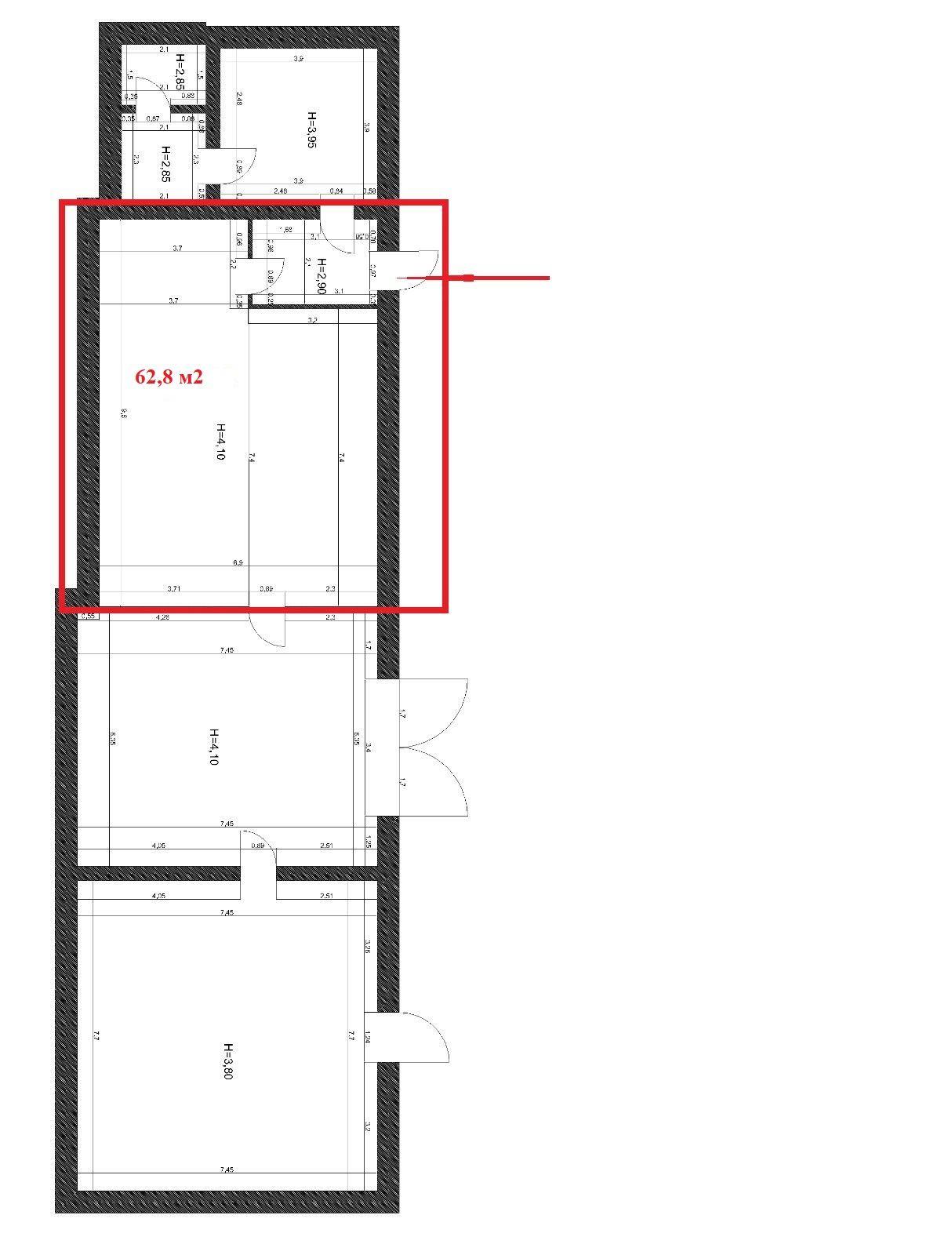
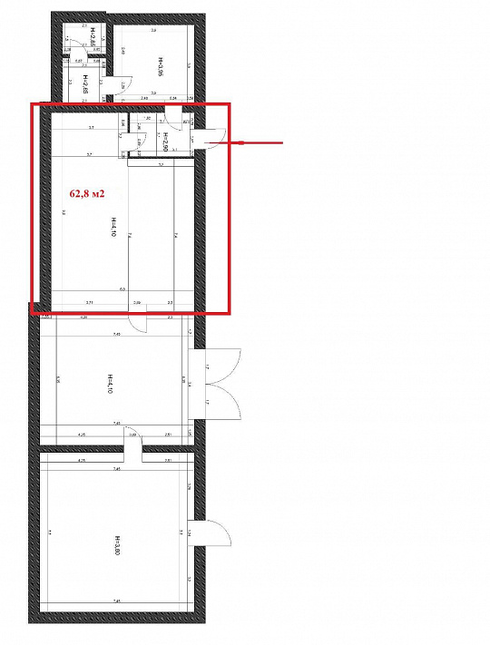
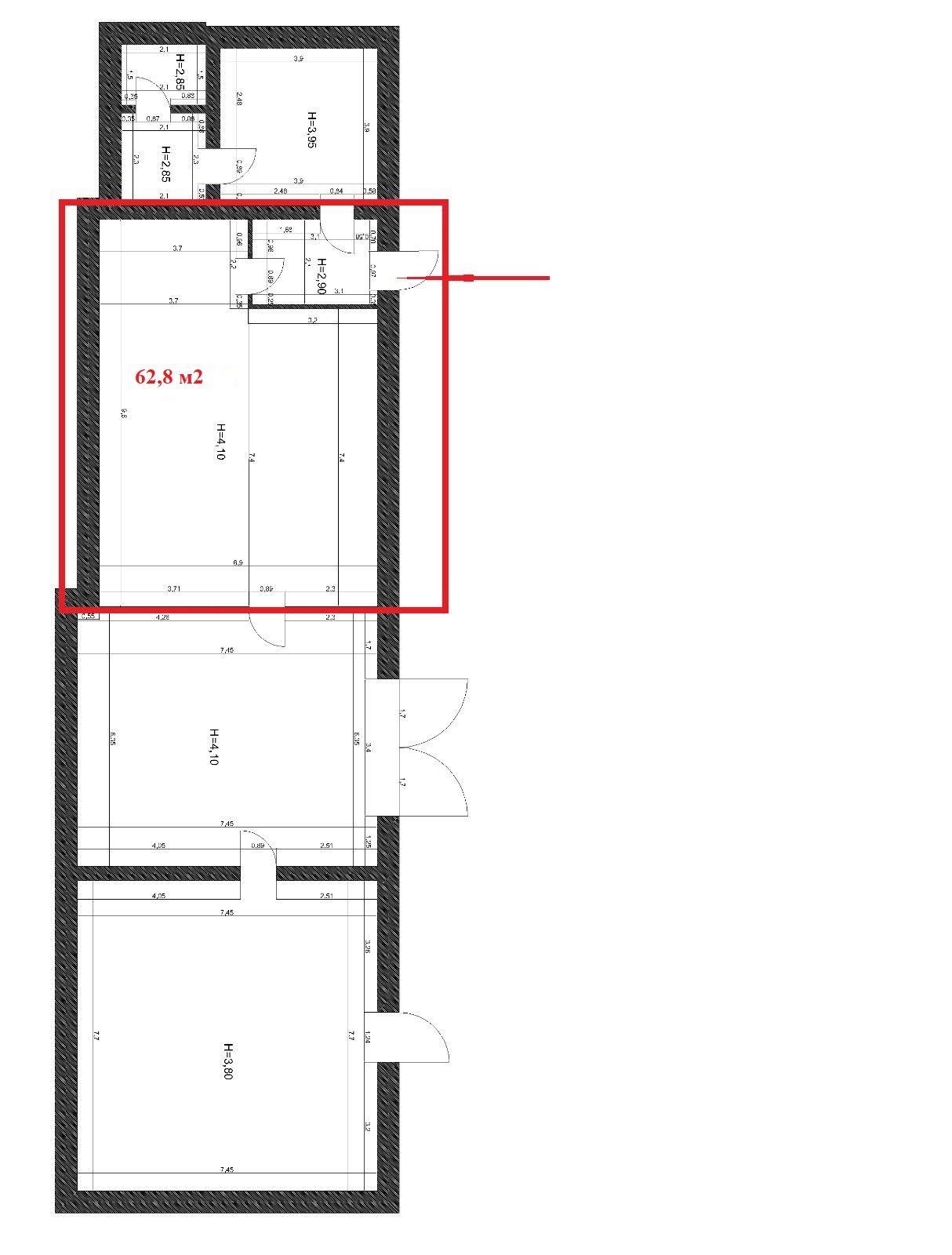
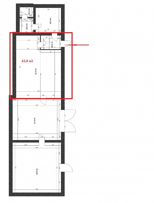
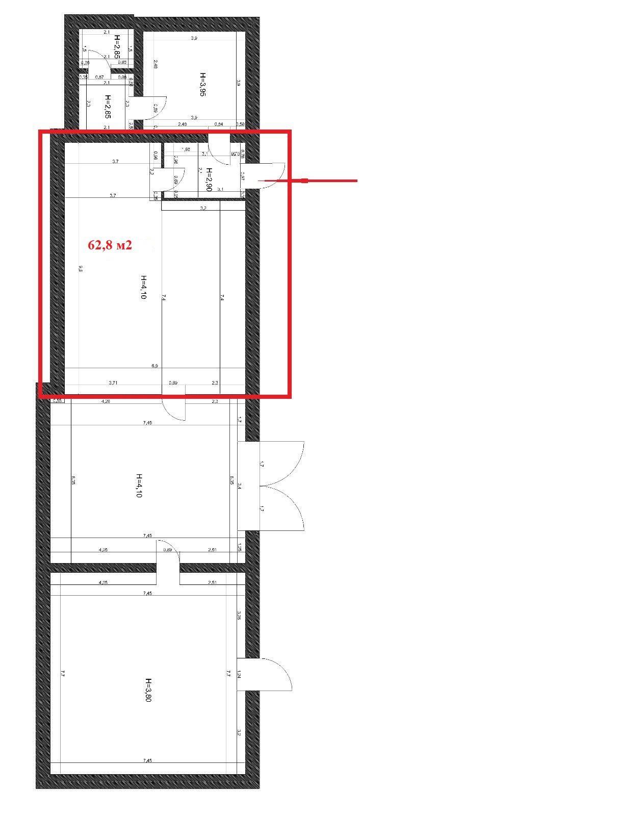
Производственное помещение, 62,8 м²

2-й Акмолинский проезд, д. 1/3

25 000 руб.

?

$ 1 086

€ 979

398 руб./м²


62.8 м²

1/1 этажей

Код объекта

106973

Предложение доступно для субагентов, авторизуйтесь

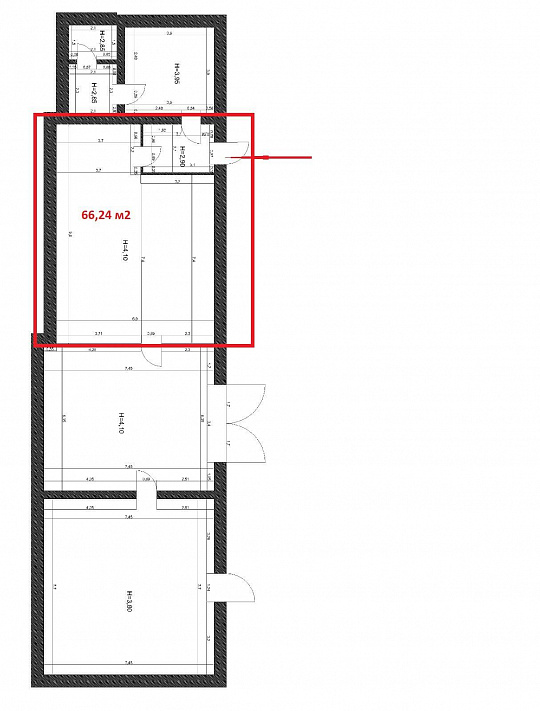
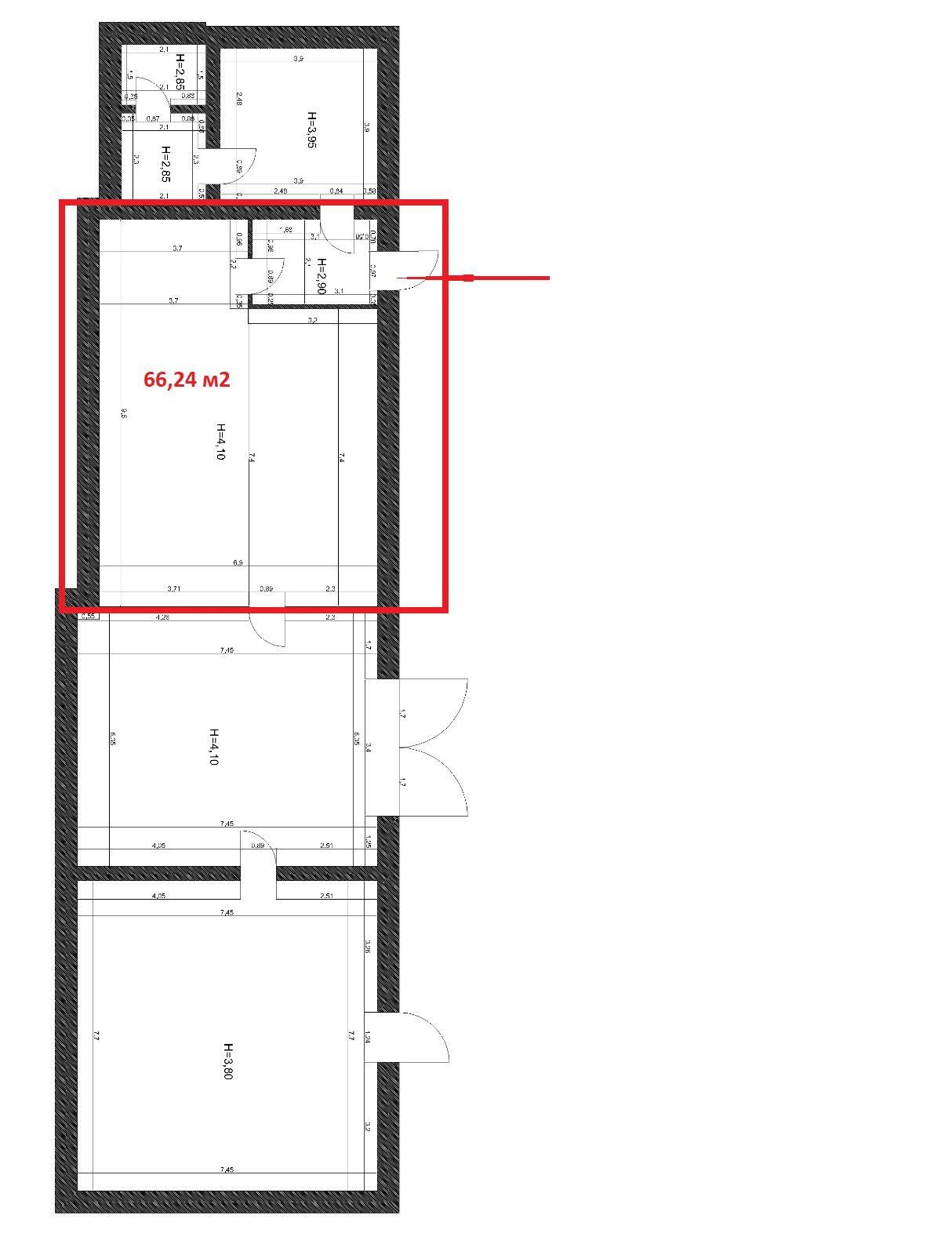
Производственное помещение, 62,8 м²

Код объекта: 106973.
Тип объекта: Производственное помещение.
Площадь: 62.8 м².
Этаж / Этажность: 1 / 1.
Назначения: Производство, Склад.

Описание и характеристики

От собственника! Без комиссии!

Производственное помещение 62,8 м2;
расположено на территории земельного участка с кадастр.№ 64:48:020369:10;
Высота потолков 4.10 м;
Мощность электроэнергии 50 кВт;
Отдельный вход;
Большая прилегающая территория для маневрирования транспорта;
Возможность аренды офисов в отапливаемом здании;
Автостоянка около здания.
Помещение подойдёт под жестяные и столярные работы.

Екатерина Д.

Перейти в карточку объекта в CRM: 106973.

Агентство Регионального Развития

+7 900 312-59-99

или оставьте ваш номер, и я перезвоню в течение 30 минут

Отправляя заявку вы соглашаетесь на обработку персональных данных

25 000 руб.

?

$ 307

€ 264

398 руб./м²


62.8 м²

1/1 этажей

Код объекта

106973

Предложение доступно для субагентов, авторизуйтесь

Агентство Регионального Развития

+7 900 312-59-99

или оставьте ваш номер, и я перезвоню в течение 30 минут

Отправляя заявку вы соглашаетесь на обработку персональных данных

Похожие объявления

Посмотреть все похожие объявления
1/3
Код объекта: 284521.
Тип объекта: Производственное помещение.
Площадь: 46.8 м².
Этаж / Этажность: 1 / 1.
1/6
Код объекта: 270456.
Тип объекта: Производственное помещение.
Площадь: 31 м².
Этаж / Этажность: 1 / 1.
1/6
Код объекта: 258500.
Тип объекта: Производственное помещение.
Площадь: 53.2 м².
Этаж / Этажность: 1 / 1.
1/15
Код объекта: 262160.
Тип объекта: Производственное помещение.
Площадь: 200 м².
Этаж / Этажность: 1 / 1.
1/3
Код объекта: 284521.
Тип объекта: Производственное помещение.
Площадь: 46.8 м².
Этаж / Этажность: 1 / 1.
1/6
Код объекта: 258500.
Тип объекта: Производственное помещение.
Площадь: 53.2 м².
Этаж / Этажность: 1 / 1.
1/10
Код объекта: 334926.
Тип объекта: Производственное помещение.
Площадь: 44 м².
Этаж / Этажность: 1 / 1.
1/18
Код объекта: 42454.
Тип объекта: Торговое помещение.
Площадь: 109 м².
Этаж / Этажность: 1 / 1.
1/4
Код объекта: 228281.
Тип объекта: Складское помещение.
Площадь: 137 м².
Этаж / Этажность: 1 / 1.
1/12
Код объекта: 210015.
Тип объекта: Отдельно стоящее здание.
Площадь: 2500 м².
Этаж / Этажность: 1 / 1.
1/9
Код объекта: 233636.
Тип объекта: Офисное помещение.
Площадь: 72 м².
Этаж / Этажность: 1 / 5.
1/14
Код объекта: 228503.
Тип объекта: Офисное помещение.
Площадь: 17 м².
Этаж / Этажность: 5 / 9.

Не хочу искать, перезвоните мне!

Оставьте номер телефона, наш специалист свяжется с вами и поможет с подбором недвижимости!