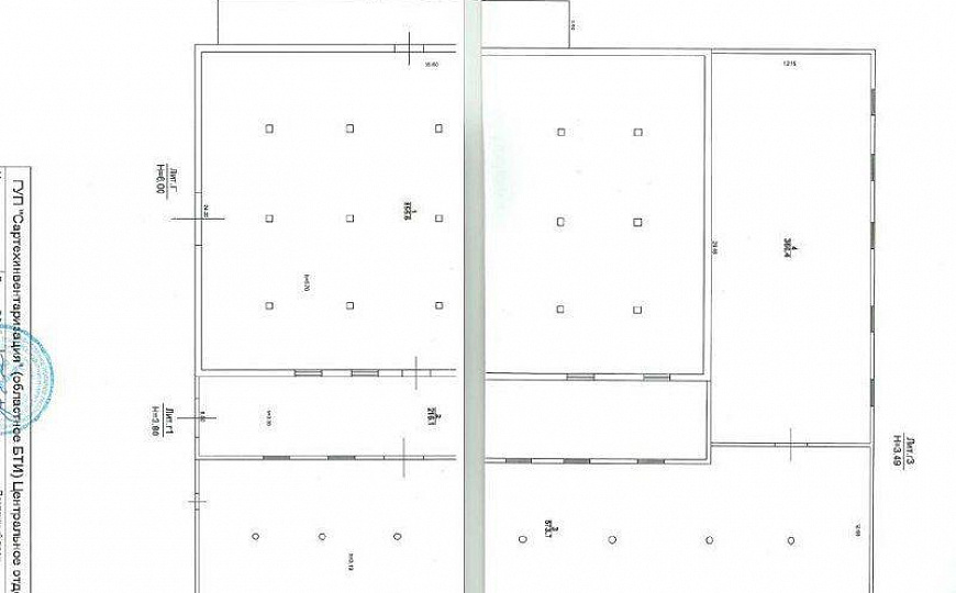
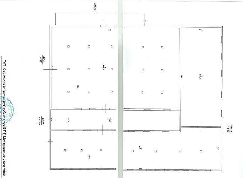
Складская база 11205 м2

ул Универсальная, д. 1а

49 000 000 руб.

?

$ 1 086

€ 979

4 373 руб./м²


11205 м²

1/1 этажей

Код объекта

108795

Предложение доступно для субагентов, авторизуйтесь

Складская база 11205 м2

Код объекта: 108795.
Тип объекта: Складское помещение.
Площадь: 11205 м².
Этаж / Этажность: 1 / 1.
Назначения: Производство, Склад.

Описание и характеристики

От собственника! Без комиссии!

Характеристики:
- Складские помещения 2555 м2
- Доступ 24/7
- ХВС
- Свой санузел
- Автономное отопление
- Максимальная мощность 35 кВт (возможность увеличения)
- Подъездные пути под грузовой транспорт, легковой транспорт
- Дополнительные преимущества: Площадка рядом с помещением, Место для маневра транспорта
- Видеонаблюдение

Дополнительная информация:
Объект представляет собой отдельно стоящие здания  разной конфигурации.
Находится на территории базы в районе складов "Танкард" по Сокурскому проезду.
Земельный участок в собственности,  
Территория заасфальтирована, огорожена забором бетонным с колючей проволокой по периметру.
В складских помещениях имеются разгрузочные пандусы, один - с навесом на 5 "Газелей"в зоне погрузки.
Ворота: 3 шт. - 3,1 м.*3,1 м.
Пол - асфальт, под погрузчик. Имеются небольшие перепады по высоте между сообщающимися складами ;
Высота потолка 3,2 м.;
Отопление - выводы под дизельные отопители до +20 (подали заявление на подведение газа) ;
Водоснабжение в административном здании - централизованное, городское;
Канализация-выгребная яма;
Сигнализация пожарная,охранная - смонтирована и готова к использованию;
Видеонаблюдение + охрана ОВО;
Интернет провайдер заведен.
Все, что необходимо по тех.условиям,  возможно сделать в короткие сроки.
Склад 550 м2 с арендатором.

По всем вопросам можете обращаться к представителю собственника: Екатерина Д.

Перейти в карточку объекта в CRM: 108795.

Агентство Регионального Развития

+7 900 312-59-99

или оставьте ваш номер, и я перезвоню в течение 30 минут

Отправляя заявку вы соглашаетесь на обработку персональных данных

49 000 000 руб.

?

$ 619 078

€ 533 542

4 373 руб./м²


11205 м²

1/1 этажей

Код объекта

108795

Предложение доступно для субагентов, авторизуйтесь

Агентство Регионального Развития

+7 900 312-59-99

или оставьте ваш номер, и я перезвоню в течение 30 минут

Отправляя заявку вы соглашаетесь на обработку персональных данных

Похожие объявления

Посмотреть все похожие объявления
1/13
Код объекта: 258959.
Тип объекта: Складское помещение.
Площадь: 8000 м².
Этаж / Этажность: 1 / 1.
1/18
Код объекта: 42454.
Тип объекта: Торговое помещение.
Площадь: 109 м².
Этаж / Этажность: 1 / 1.
1/4
Код объекта: 228281.
Тип объекта: Складское помещение.
Площадь: 137 м².
Этаж / Этажность: 1 / 1.
1/12
Код объекта: 210015.
Тип объекта: Отдельно стоящее здание.
Площадь: 2500 м².
Этаж / Этажность: 1 / 1.
1/9
Код объекта: 233636.
Тип объекта: Офисное помещение.
Площадь: 72 м².
Этаж / Этажность: 1 / 5.
1/18
Код объекта: 209216.
Тип объекта: Помещение свободного назначения.
Площадь: 150 м².
Этаж / Этажность: 1 / 1.

Не хочу искать, перезвоните мне!

Оставьте номер телефона, наш специалист свяжется с вами и поможет с подбором недвижимости!