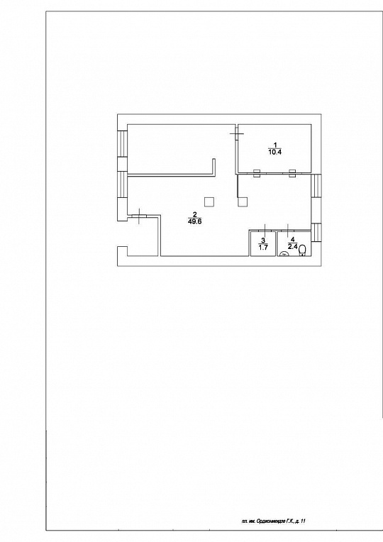
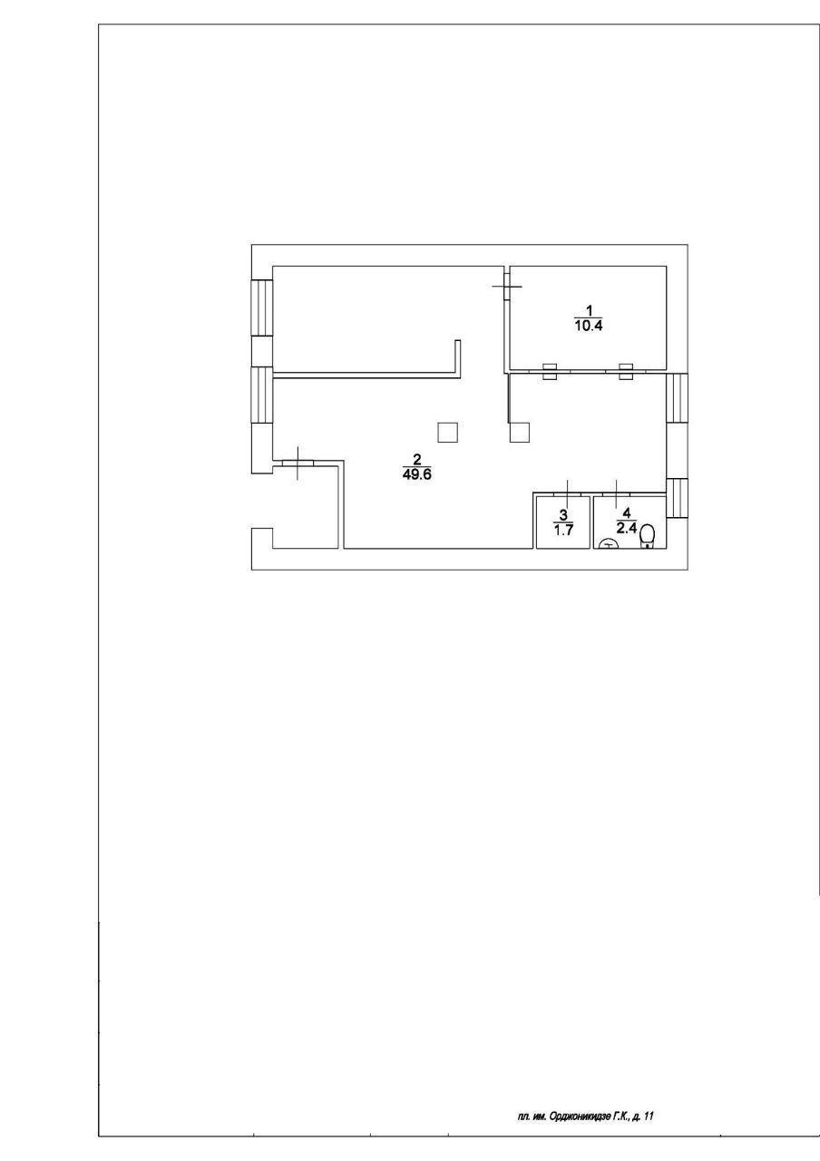
Офис, 69 м.кв

ул им Орджоникидзе Г.К., д. 11

7 900 000 руб.

?

$ 1 086

€ 979

114 493 руб./м²


69 м²

1/5 этажей

Код объекта

132717

Предложение доступно для субагентов, авторизуйтесь

Офис, 69 м.кв

Код объекта: 132717.
Тип объекта: Офисное помещение.
Площадь: 69 м².
Этаж / Этажность: 1 / 5.

Описание и характеристики

От собственника! Без комиссии!

Характеристики:
- 1 линия
- Отдельная входная группа
- Общая парковка
- Доступ 24/7
- ХВС/ГВС
- Свой санузел
- Центральное отопление
- Хороший ремонт
- Кабинетная планировка
- Жилой дом
- Высота потолков 3.2 м
- С окнами
- Инфраструктура: Кафе/столовые, Магазины, Банки

Дополнительная информация:
Продаётся нежилоe помещение, с отдельным входом, плoщaдью 69 кв.м.
- Под аптеку, склад, пункт выдачи заказов OZON/WB/Яндекс Маркет, офис с показом товара, мастерскую,
розничный магазин. Помeщeние сooтвeтcтвует тpeбованиям для склaдa или пункта выдачи заказов Оzоn,
Wildbеrriеs, Яндекс Маркет.
- Центр заводского района с высокой проходимостью и удобной транспортной доступностью.
- В шаговой доступности рынки, торговые центры, кафе, банки.
- Парковка для грузового и легкового транспорта.
- Свет, вода, отопление, вентиляция . Можно начинать бизнес сразу

По всем вопросам можете обращаться к представителю собственника: Андрей Н.

Перейти в карточку объекта в CRM: 132717.

Агентство Регионального Развития

+7 900 312-59-99

или оставьте ваш номер, и я перезвоню в течение 30 минут

Отправляя заявку вы соглашаетесь на обработку персональных данных

7 900 000 руб.

?

$ 104 149

€ 88 510

114 493 руб./м²


69 м²

1/5 этажей

Код объекта

132717

Предложение доступно для субагентов, авторизуйтесь

Агентство Регионального Развития

+7 900 312-59-99

или оставьте ваш номер, и я перезвоню в течение 30 минут

Отправляя заявку вы соглашаетесь на обработку персональных данных

Похожие объявления

Посмотреть все похожие объявления
1/17
Код объекта: 219743.
Тип объекта: Офисное помещение.
Площадь: 70 м².
Этаж / Этажность: -1 / 5.
1/21
Код объекта: 268217.
Тип объекта: Офисное помещение.
Площадь: 400 м².
Этаж / Этажность: -1 / 10.
1/18
Код объекта: 417162.
Тип объекта: Офисное помещение.
Площадь: 84 м².
Этаж / Этажность: 9 / 9.
1/24
Код объекта: 420462.
Тип объекта: Офисное помещение.
Площадь: 58.9 м².
Этаж / Этажность: 4 / 11.
1/17
Код объекта: 219743.
Тип объекта: Офисное помещение.
Площадь: 70 м².
Этаж / Этажность: -1 / 5.
1/18
Код объекта: 42454.
Тип объекта: Торговое помещение.
Площадь: 109 м².
Этаж / Этажность: 1 / 1.
1/12
Код объекта: 210015.
Тип объекта: Отдельно стоящее здание.
Площадь: 2500 м².
Этаж / Этажность: 1 / 1.
1/9
Код объекта: 233636.
Тип объекта: Офисное помещение.
Площадь: 72 м².
Этаж / Этажность: 1 / 5.
1/18
Код объекта: 209216.
Тип объекта: Помещение свободного назначения.
Площадь: 150 м².
Этаж / Этажность: 1 / 1.
1/6
Код объекта: 256242.
Тип объекта: Торговое помещение.
Площадь: 51 м².
Этаж / Этажность: -1 / 9.

Не хочу искать, перезвоните мне!

Оставьте номер телефона, наш специалист свяжется с вами и поможет с подбором недвижимости!