Продается отдельно стоящее здание. 480 м2

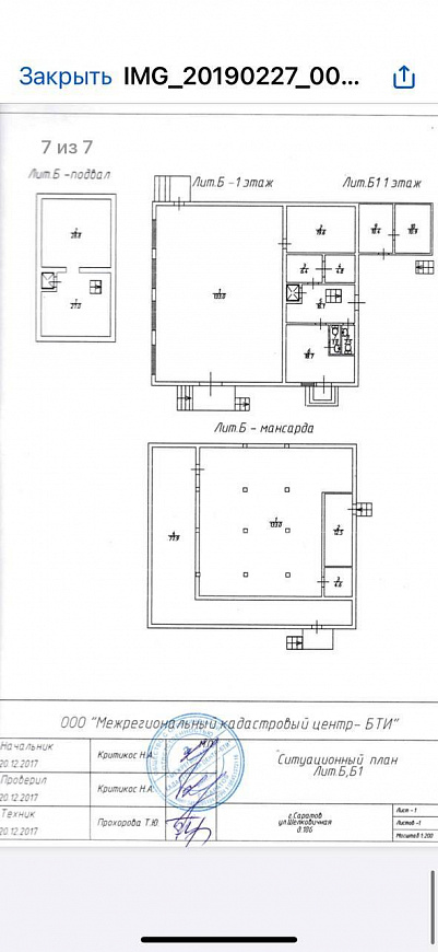
ул Шелковичная, д. 186

38 500 000 руб.

?

$ 1 086

€ 979

80 208 руб./м²


480 м²

1/2 этажей

Код объекта

110532

Предложение доступно для субагентов, авторизуйтесь

Продается Отдельно стоящее здание. 480 м2

Код объекта: 110532.
Тип объекта: Отдельно стоящее здание.
Площадь: 480 м².
Этаж / Этажность: 1 / 2.
Назначения: Арендный бизнес.

Описание и характеристики

От собственника! Без комиссии!

Продается отдельно стоящее 2-этажное здание.

Характеристики:
- 1 линия
- Отдельная входная группа
- Общая парковка
- Погрузка/разгрузка: Главный вход, Запасной вход
- Доступ 24/7
- ХВС/ГВС
- Свой санузел
- Автономное отопление
- Приточно-вытяжная вентиляция
- Есть кондиционер
- Максимальная мощность 15 кВт
- Хороший ремонт
- Отдельно стоящее здание
- Имеется запасной выход
- Без лифта
- Высота потолков 2.7 м
- С окнами
- Возможность перепланировки

Дополнительная информация:
Общей площадью 480 м2.
Мощность 15 кВТ с возможностью увеличения, три фазы 380 V.
4 санузла, своя котельная газовая, подвал 80 м2 с работающим холодильником, из подвала на первый этаж работает грузовой лифт.
Арендаторы: WB, аптека «Апрель», пекарня «Хороший хлеб» на 2 этаже, боксерский спортивный клуб. У каждого арендатора отдельный вход.
Здание находится на конечной остановке маршруток 64, 15, 45.
Земля в собственности более 5 лет.

По всем вопросам можете обращаться к представителю собственника: Евгения В.

Перейти в карточку объекта в CRM: 110532.

Агентство Регионального Развития

+7 900 312-59-99

или оставьте ваш номер, и я перезвоню в течение 30 минут

Отправляя заявку вы соглашаетесь на обработку персональных данных

38 500 000 руб.

?

$ 482 884

€ 417 609

80 208 руб./м²


480 м²

1/2 этажей

Код объекта

110532

Предложение доступно для субагентов, авторизуйтесь

Агентство Регионального Развития

+7 900 312-59-99

или оставьте ваш номер, и я перезвоню в течение 30 минут

Отправляя заявку вы соглашаетесь на обработку персональных данных

Похожие объявления

Посмотреть все похожие объявления
1/23
Код объекта: 374625.
Тип объекта: Отдельно стоящее здание.
Площадь: 800 м².
Этаж / Этажность: 1 / 2.
1/19
Код объекта: 258716.
Тип объекта: Отдельно стоящее здание.
Площадь: 25000 м².
Этаж / Этажность: 1 / 1.
1/4

45 000 000 руб.

72 150 руб./м²

Код объекта: 218524.
Тип объекта: Отдельно стоящее здание.
Площадь: 623.7 м².
Этаж / Этажность: 1 / 2.
1/12
Код объекта: 252762.
Тип объекта: Отдельно стоящее здание.
Площадь: 600 м².
Этаж / Этажность: 1 / 1.
1/21
Код объекта: 419481.
Тип объекта: Отдельно стоящее здание.
Площадь: 498 м².
Этаж / Этажность: 1 / 1.
1/4

45 000 000 руб.

72 150 руб./м²

Код объекта: 218524.
Тип объекта: Отдельно стоящее здание.
Площадь: 623.7 м².
Этаж / Этажность: 1 / 2.
1/18
Код объекта: 42454.
Тип объекта: Торговое помещение.
Площадь: 109 м².
Этаж / Этажность: 1 / 1.
1/12
Код объекта: 210015.
Тип объекта: Отдельно стоящее здание.
Площадь: 2500 м².
Этаж / Этажность: 1 / 1.
1/9
Код объекта: 233636.
Тип объекта: Офисное помещение.
Площадь: 72 м².
Этаж / Этажность: 1 / 5.
1/18
Код объекта: 209216.
Тип объекта: Помещение свободного назначения.
Площадь: 150 м².
Этаж / Этажность: 1 / 1.
1/3
Код объекта: 284521.
Тип объекта: Производственное помещение.
Площадь: 46.8 м².
Этаж / Этажность: 1 / 1.

Не хочу искать, перезвоните мне!

Оставьте номер телефона, наш специалист свяжется с вами и поможет с подбором недвижимости!